Посмотрите проекты домов в стиле бранхаус, которые можно реализовать

браунхаус купить дом

73. Z215, 151 кв.м - практичный и уютный дом с модернистскими элементами в архитектуре.

/ 8

ПЛОЩАДЬ И ГАБАРИТЫ

площадь дома/общая площадь: 150,5 / 166,4 m²
площадь застройки: 167,0 m²
строительный объем: 820 m³
высота дома: 7,94 m
угол наклона кровли: 35°
площадь кровли: 161,26 m²

ТЕХНОЛОГИЯ СТРОИТЕЛЬСТВА

тип фундамента: ленточный сборно-монолитный
Кровля: цементно-песчаная черепица/металлочерепица/керамическая черепица
Технология: каменный
Тип перекрытия: монолитное

ОПИСАНИЕ

Z215 представляет собой практичный и уютный дом с модернистскими элементами в архитектуре. При желаний дизайн экстерьера можно заменить на традиционный.

Преимущества проекта Z215:

Двускатная крыша, простая форма и конструкция дома помогут снизить затраты на строительство и содержание дома.
Полу-закрытая кухня аккуратно скрывает особенности кухонного быта от зоны отдыха.
Выход в сад, расположенный в кухне, поможет быстро и удобно организовать пикник или обед на свежем воздухе.
Крытая терраса позволит приготовить вкусное барбекю невзирая на непогоду.
Большие площади остекления в каждой комнате гарантируют прекрасное естественное освещение и дарят ощущение гармонии с внешним пространство.
Дополнительная комната на первом этаже даст возможно удобнее организовать ежедневную домашнюю деятельность. При необходимости площадь комнаты можно изменить либо отказаться от нее.
Хозяйственное помещение рядом со входом, с отдельным выходом во двор удобно спланировано для практичного использования садового инвентаря, для поддержания чистоты и порядка в доме.
Кладовая расположенная в кухне сделает хранение и использование хозяйственной утвари очень удобным.
Санузлы расположенные один под другим облегчат проведение в доме водопровода и канализации.
Каждая из комнат мансарды имеет выход на террасу.
Оригинальный, новаторский стиль оформления фасадов может быть заменен классический традиционный.

ХАРАКТЕРИСТИКИ

1-ый этаж 77,6 / 87,4 m²
Прихожая: 3,2 m²
Кладовая: 2,4 m²
Холл: 7,5 m²
Котельная: 5,5 m²
Кухня: 12,2 m²
Гостиная: 31,6 m²
Кабинет: 10,7 m²
Ванная комната: 4,5 m²
Терраса: 0,0 m² / 9,8 m²
Мансарда 72,9 / 79,0 m²
Холл: 4,6 m²
Спальня: 16,1 m²
Спальня: 21,0 m²
Спальня: 18,3 m²
Ванная комната: 12,9 m²
Балкон: 0,0 m² / 3,8 m²
Балкон: 0,0 m² / 2,3 m²
Укажите, пожалуйста, номер телефона. Мы перезвоним Вам в ближайшее время!
Получить консультацию

74. Z446, 171 кв.м - современный одноэтажный дом с грамотной удобной планировкой

/ 8

ПЛОЩАДЬ И ГАБАРИТЫ

площадь дома/общая площадь: 170,7 / 188,7 m²
площадь застройки: 307,5 m²
строительный объем: 1 131,66 m³
высота дома: 7,7 m
угол наклона кровли: 30°
площадь кровли: 270,18 m²

ТЕХНОЛОГИЯ СТРОИТЕЛЬСТВА

тип фундамента: ленточный сборно-монолитный
Кровля: металлочерепица/керамическая черепица
технология: каменный
Тип перекрытия: по деревянным балкам

ОПИСАНИЕ

Z446 представляет собой современный одноэтажный дом с грамотной удобной планировкой.

Достоинства проекта Z446:
Современный дизайн экстерьера в сочетании с простой формой строения и кровли делают дом стильным, элегантным и респектабельным. Реализация данного проекта будет актуальна в любом пейзаже.
Интерьер разделен на приватную и дневную зоны.
Главная спальня имеет собственную гардеробную и ванную комнату. В двух других спальнях предусмотрен гардероб.
Дневная зона состоит из просторной гостиной и открытой кухни, а также большой кладовой.
Гараж на одну машину удобно соединен с домом, что существенно облегчает распаковку покупок.
Из дневной зоны и главной спальни предусмотрены выходы на террасу, на которой можно приятно провести время на свежем воздухе.
Проект Z446 предназначен для семьи из 4 человек, которые ценят домашнее тепло и уют.

ХАРАКТЕРИСТИКИ

1-ый этаж 170,7 / 188,7 m²
Прихожая: 5,5 m²
Холл:  10,8 m²
Гостиная: 39,2 m²
Кухня: 15,0 m²
Спальня: 10,4 m²
Спальня: 15,2 m²
Ванная комната: 4,4 m²
Ванная комната: 5,8 m²
Гардеробная: 1,7 m²
Гардеробная: 1,8 m²
Гардеробная: 4,3 m²
Кладовая: 3,4 m²
Гардеробная: 7,5 m²
Холл: 3,4 m²
Гараж: 19,6 m²
Котельная: 5,4 m²
Терраса: 0,0 m² / 18,0 m²
Укажите, пожалуйста, номер телефона. Мы перезвоним Вам в ближайшее время!
Получить консультацию

75. Zx250, 195 кв.м - современный мансардный дом со вторым светом

/ 8

ПЛОЩАДЬ И ГАБАРИТЫ

площадь дома/общая площадь: 195,5 / 215,8 m²
площадь застройки: 267,5 m²
строительный объем: 780 m³
высота дома: 8,2 m
угол наклона кровли: 30°
площадь кровли: 242,5 m²

ТЕХНОЛОГИЯ СТРОИТЕЛЬСТВА

тип фундамента: ленточный сборно-монолитный
Кровля: металлочерепица/керамическая черепица
технология: каменный
Тип перекрытия: монолитное

ОПИСАНИЕ

Zx250 представляет собой современный мансардный дом со вторым светом.

Чем привлекателен проект Zx250:
Оригинальная архитектура и дизайн экстерьера делает проект привлекательным для ценителей современного искусства. Строение выглядит стильно и элегантно, гармонично вписываясь в любой ландшафт.
Каждая спальня имеет индивидуальную ванную комнату и гардероб, что порадует требовательных к комфорту застройщиков и обеспечит максимальное удобство и свободу каждому члену семьи.
Пройти из дома в гараж можно через подсобное помещение, что позволяет домочадцам не переходит к автомобилю через улицу и делает распаковку покупок более комфортной.
Наличие просторного и светлого кабинета на первом этаже порадует членов семьи, предпочитающих работать на дома.
Zx250 – идеальный проект для сторонников домов в европейском стиле и удобной грамотной планировкой пространства.

ХАРАКТЕРИСТИКИ

1-ый этаж 138,7 / 151,6 m²
Гараж: 17,4 m²
Котельная: 5,3 m²
Спальня: 14,0 m²
Спальня: 12,8 m²
Ванная комната: 5,7 m²
Ванная комната: 5,9 m²
Холл: 14,0 m²
Кухня: 15,4 m²
Гостиная+ столовая: 38,7 m²
Прихожая: 6,7 m²
Гардеробная: 2,8 m²
Терраса: 0,0 m² / 12,9 m²
Мансарда 56,8 / 64,2 m²
Ванная комната: 8,5 m²
Гардеробная: 5,8 m²
Гардеробная: 2,8 m²
Ванная комната: 13,2 m²
Спальня: 13,5 m²
Спальня: 11,3 m²
Холл + лестница: 1,7 m²
Терраса: 0,0 m² / 7,4 m²
Укажите, пожалуйста, номер телефона. Мы перезвоним Вам в ближайшее время!
Получить консультацию

76. Z386, 174 кв.м - одноэтажный дом с дополнительным пространством на чердаке

/ 8

ПЛОЩАДЬ И ГАБАРИТЫ

площадь дома/общая площадь: 174,0 / 202,5 m²
площадь застройки: 274,6 m²
строительный объем: 940 m³
высота дома: 6,68 m
угол наклона кровли: 32°
площадь кровли: 181,9 m²

ТЕХНОЛОГИЯ СТРОИТЕЛЬСТВА

тип фундамента: ленточный сборно-монолитный
Кровля: металлочерепица/керамическая черепица
технология: каменный
Тип перекрытия: монолитное

ОПИСАНИЕ

Z386 представляет собой одноэтажный дом с дополнительным пространством на чердаке.

Достоинства проекта Z386:
Современный элегантный дизайн, сочетающий отделку из плитки под кирпич и деревянных панелей, делает строительство по проекту актуальным в любой местности.
Размещение помещений дневной и приватной зоны на одном уровне делает проект привлекательным для семей с пожилыми родственниками и малыми детьми.
Пространство на чердаке можно обустроить как семейный кинозал.
Внутрь помещений проникает много дневного света благодаря предусмотренным проектом большим зонам остекления.
Перед входом в приватную часть дома размещен небольшой кабинет, который при необходимости удобно использовать как комнату для гостей. Рядом находится общий санузел с душем.
Каждая спальня оснащена индивидуальной ванной комнатой.
Проект Z386 – хороший вариант для тех, кто ищет практичный дом с современным дизайном.

ХАРАКТЕРИСТИКИ

1-ый этаж 127,4 / 155,9 m²
Прихожая: 4,0 m²
Гостиная+ столовая: 35,8 m²
Кухня: 8,1 m²
Кладовая: 2,4 m²
Холл: 6,7 m²
Котельная: 8,8 m²
Ванная комната: 5,0 m²
Кабинет: 9,8 m²
Холл: 2,7 m²
Спальня: 14,5 m²
Ванная комната: 6,1 m²
Спальня: 13,3 m²
Ванная комната: 6,2 m²
Гардеробная: 4,0 m²
Терраса: 0,0 m² / 28,5 m²
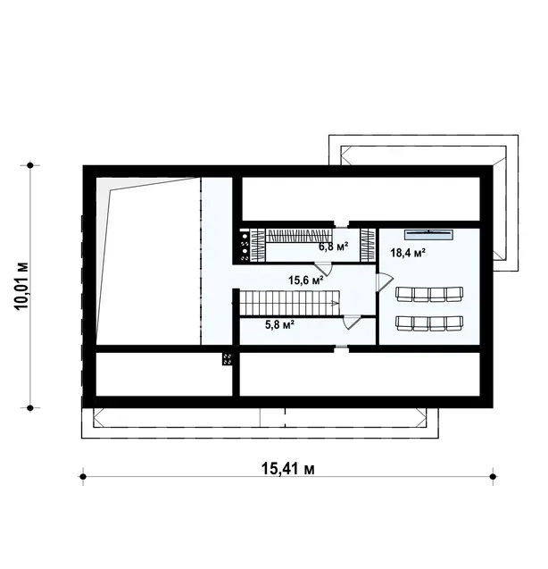
2-ой этаж 46,6 / 46,6 m²
Холл: 15,6 m²
Гардеробная: 5,8 m²
Гардеробная: 6,8 m²
Комната отдыха: 18,4 m²
Укажите, пожалуйста, номер телефона. Мы перезвоним Вам в ближайшее время!
Получить консультацию

77. Z434, 119 кв.м - одноэтажный дом с двускатной крышей, навесом и эркером.

/ 7

ПЛОЩАДЬ И ГАБАРИТЫ

площадь дома/общая площадь: 118,5 m²
площадь застройки: 151,6 m²
высота дома: 7,11 m
угол наклона кровли: 35° / 2°
площадь кровли: 178,58 m²

ТЕХНОЛОГИЯ СТРОИТЕЛЬСТВА

тип фундамента: ленточный сборно-монолитный
Кровля: металлочерепица/керамическая черепица
технология: каменный
Тип перекрытия: монолитное

ОПИСАНИЕ

Z434 представляет собой одноэтажный дом с двускатной крышей, навесом и эркером.

Достоинства проекта Z434:
Проект привлекает внешним обликом. На фасадах минимум деталей. Для отделки фасадов выбрана декоративная плитка, белая штукатурка и темное дерево.
Проект предусматривает большие зоны остекления в дневной и приватной зоне, что способствует хорошему освещению интерьера.
Планировка внутреннего пространства грамотна и функциональна. Предусматривается четкое размежевание общей дневной зоны и приватной части дома со спальнями для отдыха.
Дневная зона имеет открытую планировку.
Имеется отдельное помещение прачечной.
Из прихожей имеется переход в отдельную просторную гардеробную. Здесь поместятся верхняя одежда и обувь всех членов семьи.
Проект Z434 – хороший вариант для тех, кто ищет компактный, привлекательный и уютный дом для семьи из 3-4 человек.

ХАРАКТЕРИСТИКИ

1-ый этаж 118,5 / 118,5 m²
Гостиная: 23,2 m²
Кухня: 13,3 m²
Прачечная: 5,9 m²
Кладовая: 3,2 m²
Прихожая: 7,2 m²
Холл: 9,1 m²
Спальня: 12,3 m²
Спальня: 14,6 m²
Спальня: 13,1 m²
Ванная комната: 5,2 m²
Ванная комната: 5,2 m²
Холл: 6,2 m²
Укажите, пожалуйста, номер телефона. Мы перезвоним Вам в ближайшее время!
Получить консультацию

78. Z330 P, 216 кв.м - проект удобного и красивого мансардного дома с гаражом на 2 машини и 3 спальнями.

/ 5

ПЛОЩАДЬ И ГАБАРИТЫ

площадь дома/общая площадь: 215,8 m²
площадь застройки: 218,4 m²
строительный объем: 1 070 m³
высота дома: 8,15 m
угол наклона кровли: 42°
площадь кровли: 168,55 m²

ТЕХНОЛОГИЯ СТРОИТЕЛЬСТВА

тип фундамента: ленточный сборно-монолитный
Кровля: металлочерепица/керамическая черепица
технология: каменный
Тип перекрытия: монолитное

ОПИСАНИЕ

Наш каталог архитектурных проектов предлагает вашему вниманию просторный дом Z330 P с вместительным гаражом и тремя спальнями, который понравится не только комфортом, но и современным дизайнерским решением.

Преимущества проекта Z330 P:

В гараже найдется место не только для хранения ваших автомобилей, но и устройства мастерской или склада садового инвентаря и мебели.
Нижний ярус дома выполнен в виде дневной зоны, дополненной санузлом. Его пространство поделено условно на столовую, кухонную зону и гостевую. Широкие окна в пол наполнят помещение светом.
Из гостиной предусмотрены выходы на полуоткрытую террасу. Многие не останутся равнодушными от возможности проведения трапез прямо у себя в саду!
На втором этаже расположились три спальни, общий санузел и гардеробная. Каждая комната оборудована местом под гардероб, а в главной спальне есть свой санузел.

ХАРАКТЕРИСТИКИ

1-ый этаж 123,7 / 123,7 m²
Прихожая: 5,8 m²
Холл: 9,1 m²
Кладовая: 4,3 m²
Гостиная+ столовая: 40,3 m²
Кухня: 11,4 m²
Ванная комната: 10,2 m²
Гараж: 35,3 m²
Котельная: 7,2 m²
2-ой этаж 92,1 / 92,1 m²
Спальня: 17,6 m²
Спальня: 22,3 m²
Ванная комната: 9,4 m²
Спальня: 16,6 m²
Ванная комната: 11,8 m²
Холл: 7,6 m²
Гардеробная: 6,8 m²
Укажите, пожалуйста, номер телефона. Мы перезвоним Вам в ближайшее время!
Получить консультацию

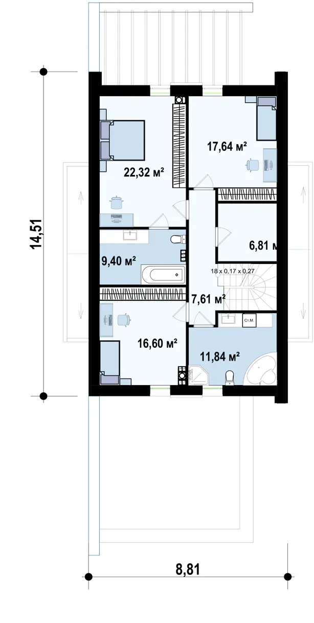
79. Z433, 219 кв.м - дом с мансардой, двускатной крышей, гараж на две машины

/ 6

ПЛОЩАДЬ И ГАБАРИТЫ

площадь дома/общая площадь: 218,8 m²
площадь застройки: 166,0 m²
высота дома: 7,9 m
угол наклона кровли: 40° / 2°
площадь кровли: 188,85 m²

ТЕХНОЛОГИЯ СТРОИТЕЛЬСТВА

тип фундамента: ленточный сборно-монолитный
Кровля: металлочерепица/керамическая черепица
технология: каменный
Тип перекрытия: монолитное

ОПИСАНИЕ

Z433 представляет собой современный дом с мансардой, двускатной крышей и гаражом на две машины.

Достоинства проекта Z433:
Большие зоны остекления в дневной части дома способствуют хорошему освещению интерьера и его визуальному расширению.
Из гостиной есть возможность выйти на крытую террасу, где можно отдыхать за чтением книги в уединении или же организовывать веселые посиделки с друзьями и семьей.
Просторный гараж на 2 автомобиля спроектирован во фронтальной части строения. Из него есть возможность перехода в прихожую. Такая планировка повышает комфорт проживания членов семьи.
На первом этаже также имеется небольшая ночная зона с дополнительной уютной спальней. Рядом с ней предусмотрен санузел с душем.
На мансардном этаже запланирована приватная зона с 3 уютными и комфортными спальнями.
Проект Z433 – отличная идея для тех, кто ищет компактный и уютный дом с привлекательным современным оформлением фасадов. Проект разработан специально для собственников узких участков под застройку.

ХАРАКТЕРИСТИКИ

1-ый этаж 147,6 / 147,6 m²
Спальня: 14,4 m²
Холл + лестница: 12,9 m²
Кладовая: 2,5 m²
Кухня: 9,4 m²
Гостиная: 40,6 m²
Гараж: 33,3 m²
Кабинет: 14,4 m²
Ванная комната: 9,7 m²
Котельная: 5,5 m²
Прихожая: 4,9 m²
2-ой этаж 71,2 / 71,2 m²
Холл: 17,5 m²
Спальня: 13,9 m²
Ванная комната: 5,3 m²
Спальня: 17,8 m²
Спальня: 16,7 m²
Укажите, пожалуйста, номер телефона. Мы перезвоним Вам в ближайшее время!
Получить консультацию

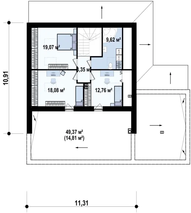
80. Z463, 231 кв.м - современный мансардный проект дома с террасой и гаражом на две машины

/ 8

ПЛОЩАДЬ И ГАБАРИТЫ

площадь дома/общая площадь: 230,7 / 236,1 m²
площадь застройки: 273,8 m²
строительный объем: 1 m³
высота дома: 7,4 m
угол наклона кровли: 30°
площадь кровли: 160 m²

ТЕХНОЛОГИЯ СТРОИТЕЛЬСТВА

тип фундамента: ленточный сборно-монолитный
Кровля: металлочерепица/керамическая черепица
технология: каменный
Тип перекрытия: монолитное

ОПИСАНИЕ

Z463 представляет собой современный мансардный проект дома с террасой и гаражом на две машины.

Чем интересен проект Z463:
Дизайн экстерьера, несомненно, выделяет дом на фоне соседних домов. Для отделки выбрано натуральное светлое дерево и штукатурка цвета графит.
Привлекает проект наличием на первом этаже двух дополнительных спален.
Кроме того, в доме предусмотрено две дневных зоны открытой планировки.
Гараж удобно совмещен с домом. Благодаря этому значительно проще и легче переносить покупки из машины в дом.
На втором этаже спроектировано 3 просторных и комфортных спальни с красивыми мансардными окнами. Здесь же имеется и общая ванная комната.
Из двух спален на втором этаже есть выход на просторную открытую террасу, где можно принимать солнечные ванны или выполнять утренние упражнения.
Проект Z463 разработан специально для больших семей, члены которых ценят личное пространство, свободу и независимость.

ХАРАКТЕРИСТИКИ

1-ый этаж 153,0 / 158,4 m²
Гараж: 31,3 m²
Гостиная + кухня: 34,8 m² / 29,6 m²
Спальня: 13,1 m²
Кладовая: 2,4 m²
Ванная комната: 5,7 m²
Сан. узел: 4,1 m²
Гостиная + кухня: 20,2 m²
Гардеробная: 3,8 m²
Терраса: 0,0 m² / 3,8 m²
Терраса: 0,0 m² / 6,8 m²
2-ой этаж 77,7 / 77,7 m²
Укажите, пожалуйста, номер телефона. Мы перезвоним Вам в ближайшее время!
Получить консультацию

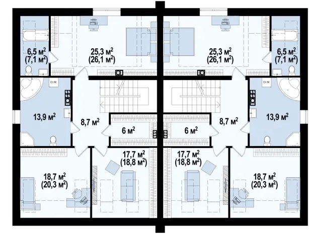
81. Zb13, 191 кв.м - проект домов для симметричной застройки стильного современного дизайна.

/ 9

ПЛОЩАДЬ И ГАБАРИТЫ

площадь дома/общая площадь: 191,1 / 201,1 m²
площадь застройки: 165,9 m²
высота дома: 9,12 m
угол наклона кровли: 32°
площадь кровли: 111,4 m²

ТЕХНОЛОГИЯ СТРОИТЕЛЬСТВА

тип фундамента: ленточный сборно-монолитный
Кровля: металлочерепица/керамическая черепица
технология: каменный
Тип перекрытия: монолитное

ОПИСАНИЕ

Разработка Zb13 представляет проект домов для симметричной застройки стильного современного дизайна. Светлые тона, выбранные для оформления фасада, поддерживают лаконичную форму дома (гараж практически незаметен).

С фронтальной стороны дома всё внимание уделено входной группе, которая довольно необычно структурирована.

На первом этаже спроектирована открытая дневная зона с камином у внутренней стены, также во фронтальной части выделено место для кабинета (или гостевой спальни). Второй этаж полностью посвящён ночной зоне. Здесь спланированы три просторные спальни с общей ванной. В хозяйской комнате устроена собственная ванная. Также предусмотрено довольно вместительное подсобное помещение у лестничного марша.

ХАРАКТЕРИСТИКИ

1-ый этаж 91,8 / 100,2 m²
Гараж: 19,5 m²
Котельная: 5,5 m²
Гостиная: 21,1 m²
Кухня: 17,1 m²
Прихожая: 4,4 m²
Спальня: 10,0 m²
Ванная комната: 6,6 m²
Холл + лестница: 7,6 m²
Терраса: 0,0 m² / 8,4 m²
Мансарда 99,3 / 100,9 m²
Спальня: 26,1 m²
Спальня: 18,8 m²
Спальня: 18,7 m² / 20,3 m²
Холл: 8,7 m²
Гардеробная: 6,0 m²
Ванная комната: 7,1 m²
Ванная комната: 13,9 m²
Укажите, пожалуйста, номер телефона. Мы перезвоним Вам в ближайшее время!
Получить консультацию

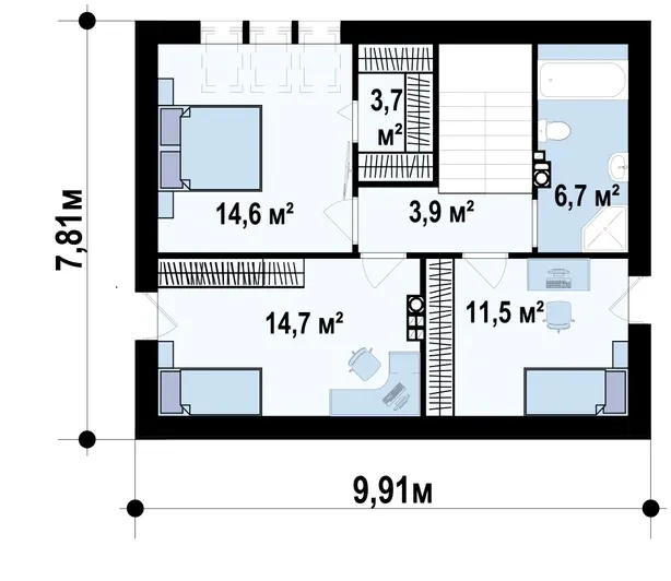
82. Z229, 107 кв.м - энергосберегающий дом стильного современного дизайна.

/ 14

ПЛОЩАДЬ И ГАБАРИТЫ

площадь дома/общая площадь: 107,3 / 116,0 m²
площадь застройки: 111,6 m²
строительный объем: 465 m³
высота дома: 7,15 m
угол наклона кровли: 35°
площадь кровли: 82,3 m²

ТЕХНОЛОГИЯ СТРОИТЕЛЬСТВА

тип фундамента: ленточный сборно-монолитный
Кровля: металлочерепица/керамическая черепица
технология: каменный
Тип перекрытия: монолитное

ОПИСАНИЕ

Проект Z229 представляет собой энергосберегающий дом стильного современного дизайна.Хотя, благодаря традиционной форме и двускатной крыше, минималистичный, футуристический дизайн фасадов можно заменить на привычный взгляду классический стиль.

Преимущества проекта Z229:

Простая прямоугольная форма дома, двускатная крыша, небольшая площадь позволяют сократить расходы на строительство дома и уменьшить энергозатраты на отопление.
Закрытая форма кухни дает возможность скрыть особенности хозяйственной деятельности. При желании ее можно сделать частично или полностью открытой, увеличивая зрительно пространство дневной зоны.
Расположение выхода на террасу в кухне позволяет удобно и быстро накрыть обеденный стол или организовать пикник в саду.
Открытая терраса (отсутствие навесов над террасой) позволяет большему количеству солнечного света проникать в гостиную.
Вместительное хозяйственное помещение с выходом в сад практично расположено и для хранения любой садовой техники, и для поддержания порядка в доме.
Кладовая в кухне поможет удобнее организовать ежедневную хозяйственную деятельность.
Одна из спален мансарды имеет собственную гардеробную.
Классическая форма дома и кровли позволяет воплотить как изысканный современный архитектурный стиль фасадов, так и традиционный.

ХАРАКТЕРИСТИКИ

1-ый этаж 52,2 / 60,9 m²
Прихожая: 4,1 m²
Котельная: 6,9 m²
Холл: 2,9 m²
Гостиная+ столовая: 24,5 m²
Кухня: 8,9 m²
Кладовая: 1,5 m²
Ванная комната: 3,4 m²
Терраса: 0,0 m² / 8,7 m²
2-ой этаж 55,1 / 55,1 m²
Холл + лестница: 3,9 m²
Спальня: 14,6 m²
Гардеробная: 3,7 m²
Спальня: 14,7 m²
Спальня: 11,5 m²
Ванная комната: 6,7 m²
Укажите, пожалуйста, номер телефона. Мы перезвоним Вам в ближайшее время!
Получить консультацию
Данные проекты взяты с сайта z500proekty.ru, они используется только для ознакомления.

Контакты

Мы находимся в г. Новосибирске, ул. Мичурина 20
офис 213

График работы:
Пн-Пт с 9:00 до 18:00
Сб: 10:00 до 18:00

тел.: +7 (800) 101 20 04, +7 (913) 771 24 98
e-mail: 7712498stroy@mail.ru 
НАШИ КОНТАКТЫ
Внимание! Данный сайт носит информационный характер и ни при каких условиях не является публичной офертой, которая определяется положениями Статьи 437. Гражданского кодекса РФ. Для получения подробной информации остоимости указанных услуг, пожалуйста, обращайтесь к нашим менеджерам.
Данный сайт был разработан сотрудниками компании «Unicode-Profi»
Сейчас работаем
Не работаем
Обратный звонок
Мы вам перезвоним!
Укажите, пожалуйста, номер телефона. Мы перезвоним Вам в ближайшее время!