Посмотрите проекты одноэтажных домов, которые можно реализовать

проект одноэтажного дома новосибирск

проект одноэтажного дома новосибирск

№1 - Z72, 73 кв.м. - экономичный в реализации одноэтажный дом с просторной гостиной и двумя спальнями.

/ 3
Получить консультацию
Мы вам перезвоним!
Укажите, пожалуйста, номер телефона. Мы перезвоним Вам в ближайшее время!

ПЛОЩАДЬ И ГАБАРИТЫ

площадь дома/общая площадь: 73,0 / 77,6 m²
площадь застройки: 118,9 m²
строительный объем: 380 m³
высота дома: 5,4 m
угол наклона кровли: 25°
площадь кровли: 140,5 m²

ТЕХНОЛОГИЯ СТРОИТЕЛЬСТВА

тип фундамента: ленточный сборно-монолитный
Кровля: цементно-песчаная черепица/металлочерепица/керамическая черепица
Технология: каменный
Тип перекрытия: монолитное

ОПИСАНИЕ

Проект Z72 — это экономичный в реализации одноэтажный дом с просторной гостиной и двумя спальнями. Несмотря на свои небольшие габариты, дом уютный, функциональный и достаточно привлекательный.

Преимущества проекта Z72:

Комфорт в использовании помещений на одном уровне позволяет быстро воспользоваться любым из них.
Небольшая площадь дома, простая форма, двускатная крыша делают дом выгодным в строительстве и эксплуатации.
Отсутствие несущих стен дает возможность вносить самые разнообразные изменения в планировку. Уменьшив площадь холла и прихожей можно увеличить площадь кухни и одной из комнат. Кухню можно сделать полностью закрытой. И т.д.
Открытая кухня зрительно увеличивает пространство дневной зоны, способствует ее лучшему естественному освещению.
Крытая терраса поможет приготовить вкусный гриль или шашлык в любую погоду, или просто отдохнуть на свежем воздухе практически не выходя из дома.
Отсутствие окон в боковых стенах дома позволяет расположить его на меньшем участке земли.
Кладовая расположенная рядом с кухней удобна для хранения запасов и кухонной техники.
Традиционный характер дома придется по вкусу любителям классических решений в архитектуре.

ХАРАКТЕРИСТИКИ

Прихожая: 4,4 m²
Холл: 5,9 m²
Гостиная: 20,0 m²
Кухня + кладовая: 10,8 m²
Ванная комната: 7,1 m²
Спальня: 14,4 m²
Спальня: 10,4 m²
Терраса: 0,0 m² / 4,6 m²

№2 - Z55, 93 кв.м. - проект компактного функционального дома с боковой террасой.

/ 3
Получить консультацию
Мы вам перезвоним!
Укажите, пожалуйста, номер телефона. Мы перезвоним Вам в ближайшее время!

ПЛОЩАДЬ И ГАБАРИТЫ

площадь дома/общая площадь: 92,8 / 103,2 m²
площадь застройки: 154,0 m²
строительный объем: 600 m³
высота дома: 6,11 m
угол наклона кровли: 30°
площадь кровли: 197,5 m²

ТЕХНОЛОГИЯ СТРОИТЕЛЬСТВА

тип фундамента: ленточный сборно-монолитный
Кровля: цементно-песчаная черепица/металлочерепица/керамическая черепица
Технология: каменный
Тип перекрытия: монолитное

ОПИСАНИЕ

Z55 — это компактный функциональный дом с двумя спальнями, с крытой боковой террасой. Очаровательный традиционный дизайн, практичная планировка и экономичность делают его выгодным вложением средств.

Преимущества проекта Z55:

Размещение всех помещений на одном уровне предоставит быстрый доступ к любому из них.
Простая форма, двускатная крыша, небольшая площадь дома способствуют снижению затрат на строительство и эксплуатацию.
Открытая кухня зрительно увеличивает пространство дневной зоны, при необходимости ее можно сделать полностью или частично закрытой.
Два выхода на террасу позволят быстро и удобно организовать пикник или обычный обед на свежем воздухе.
Крытая терраса станет прекрасным продолжением дневной зоны летом, к тому же она поможет приготовить барбекю в любую погоду.
Расположение окон в дневной зоне с трех сторон (северной, западной и южной) обеспечит хорошее естественное освещение в течение всего дня.
Кладовая расположенная рядом с кухней очень удобна для хранения запасов и хозяйственной утвари.
Проект предусматривает возможность использования помещения чердака как свободного пространства, для этого в холе можно выделить место для компактной лестницы.
Характерный традиционный стиль дома по достоинству оценят любители классической архитектуры.

ХАРАКТЕРИСТИКИ

Прихожая: 3,5 m²
Холл: 5,8 m²
Гостиная: 25,5 m²
Котельная: 5,4 m²
Ванная комната: 7,2 m²
Спальня: 18,0 m²
Спальня: 18,1 m²
Кухня: 9,3 m²
Терраса: 0,0 m² / 10,4 m²

№3 - Z35, 167 кв.м - просторный одноэтажный дом с тремя спальнями и большим гаражом.

/ 15
Получить консультацию
Мы вам перезвоним!
Укажите, пожалуйста, номер телефона. Мы перезвоним Вам в ближайшее время!

ПЛОЩАДЬ И ГАБАРИТЫ

площадь дома/общая площадь: 166,6 / 171,1 m²
площадь застройки: 261,3 m²
строительный объем: 995 m³
высота дома: 6,43 m
угол наклона кровли: 28°
площадь кровли: 307,1 m²

ТЕХНОЛОГИЯ СТРОИТЕЛЬСТВА

тип фундамента: ленточный сборно-монолитный
Кровля: цементно-песчаная черепица/металлочерепица/керамическая черепица
Технология: каменный
Тип перекрытия: монолитное

ОПИСАНИЕ

Практичный одноэтажный дом Z35 с большим гаражом и возможностью обустройства мансардного помещения придется по вкусу сторонникам традиционных одноэтажных строений. Красивое сочетание отделочного камня и дерева на фасадах, многоскатная кровля придают дому характер уютного семейного гнезда.

Преимущества проекта Z35:

Комфорт в использовании помещений на одном уровне исключает необходимость переходить с этажа на этаж.
Открытая кухня зрительно увеличивает пространство дневной зоны.
Угловое расположение камина в гостиной позволит со временем пристроить к нему внешний камин на террасе.
Крытая терраса является практичным внешним продолжением интерьера, она позволит приготовить отличный гриль в любую погоду.
Расположение окон в гостиной с трех сторон (северной, восточной и южной), а также большие площади остекления гарантируют прекрасное естественное освещение помещения.
Большое техническое за гаражом с выходом в сад сможет вместить весь необходимый инвентарь, его можно, также, оборудовать как мастерскую.
Прямой переход из гаража в дом значительно облегчает перенос вещей из машины.
Возможность обустройства жилой мансарды на чердаке позволит вести строительство дома в несколько этапов. Проект предполагает место в холле для лестницы ведущей наверх.

ХАРАКТЕРИСТИКИ

Прихожая: 4,5 m²
Холл: 8,8 m²
Кухня: 14,5 m²
Гостиная: 33,4 m²
Спальня: 17,4 m²
Спальня: 14,5 m²
Ванная комната: 6,7 m²
Спальня: 11,5 m²
Хоз. помещение: 5,4 m²
Холл: 6,1 m²
Гараж: 34,7 m²
Терраса: 0,0 m² / 4,5 m²

№4 - Z12, 65 кв.м - простой в реализации дом с двускатной крышей, с возможностью обустройства мансарды.

/ 14
Получить консультацию
Мы вам перезвоним!
Укажите, пожалуйста, номер телефона. Мы перезвоним Вам в ближайшее время!

ПЛОЩАДЬ И ГАБАРИТЫ

площадь дома/общая площадь: 65,3 / 72,3 m²
площадь застройки: 127,7 m²
строительный объем: 320 m³
высота дома: 7,3 m
угол наклона кровли: 40°
площадь кровли: 143 m²

ТЕХНОЛОГИЯ СТРОИТЕЛЬСТВА

тип фундамента: ленточный сборно-монолитный
Кровля: цементно-песчаная черепица/металлочерепица/керамическая черепица
Технология: каменный
Тип перекрытия: монолитное

ОПИСАНИЕ

Проект Z12 — это простой в реализации дом с двускатной крышей с возможностью обустройства мансарды. Компактный, удобный и экономичный — сочетание этих важных характеристик в одном проекте делают его выгодным объектом для инвестиций.

Преимущества проекта Z12:

простая форма и небольшая площадь дома, двускатная крыша позволяют значительно снизить строительные и эксплуатационные расходы;
удобное расположение всех помещений на одном уровне исключает необходимость перехода с этажа на этаж;
практически полное отсутствие внутренних несущих стен дают возможность свободно изменять планировку;
открытая кухня зрительно увеличивает пространство дневной зоны, но при желании ее можно отделить от гостиной стенной перегородкой;
большое хозяйственное помещение позволяет оборудовать в нем котельную для любого вида топлива, а также сделать доступ на кухню и обустроить практичную кладовую;
возможность обустройства жилой мансарды на чердаке позволит в случае необходимости значительно расширить жилую площадь.

ХАРАКТЕРИСТИКИ

Прихожая: 3,8 m²
Холл: 4,1 m²
Гостиная: 19,0 m²
Котельная: 5,4 m²
Ванная комната: 5,3 m²
Спальня: 8,3 m²
Спальня: 12,2 m²
Терраса: 0,0 m² / 7,0 m²

№5 - Z19, 157 кв.м - одноэтажный удобный дом с фронтальным гаражом, с возможностью обустройства мансарды.

/ 12
Получить консультацию
Мы вам перезвоним!
Укажите, пожалуйста, номер телефона. Мы перезвоним Вам в ближайшее время!

ПЛОЩАДЬ И ГАБАРИТЫ

площадь дома/общая площадь: 156,6 / 158,7 m²
площадь застройки: 224,2 m²
строительный объем: 1 120 m³
высота дома: 7,24 m
угол наклона кровли: 30°
площадь кровли: 289,6 m²

ТЕХНОЛОГИЯ СТРОИТЕЛЬСТВА

тип фундамента: ленточный сборно-монолитный
Кровля: цементно-песчаная черепица/металлочерепица/керамическая черепица
Технология: каменный
Тип перекрытия: монолитное

ОПИСАНИЕ

Проект Z19 — это одноэтажный удобный дом с фронтальным гаражом для двух автомобилей. Конструкция крыши дает возможность обустроить мансарду по мере необходимости, что делает дом выгодным и практически универсальным.

Преимущества проекта Z19:

простая форма дома способствует его быстрому и экономичному строительству;
комфорт в использовании помещений на одном этаже исключает необходимость перехода с этажа на этаж;
окна дневной зоны расположены с трех сторон, что гарантирует хорошее естественное освещение в течение всего дня;
камин, расположенный в углу гостиной подарит ни с чем несравнимое ощущение домашнего уюта;
обеденная зона аккуратно отделена от гостиной и кухни с помощью эркера, что делает ее более уютной;
открытая кухня визуально увеличивает пространство дневной зоны, хотя есть возможность сделать ее более закрытой;
кладовая в кухне очень удобна для хранения домашних запасов;
хозяйственное помещение с прямым доступом к гаражу удобно для хранения инструментов и инвентаря;
прямой переход из гаража в дом упрощает распаковку и перенос покупок;
крытая терраса незаменима для приготовления гриля в дождливую погоду;
традиционный стиль архитектуры придется по вкусу всем любителям классики.

ХАРАКТЕРИСТИКИ

Прихожая: 5,5 m²
Холл: 7,2 m²
Холл: 8,5 m²
Гостиная+ столовая: 33,5 m²
Кухня: 10,0 m²
Кладовая: 3,2 m²
Спальня: 15,0 m²
Спальня: 14,2 m²
Ванная комната: 5,0 m²
Спальня: 11,8 m²
Сан. узел: 2,5 m²
Котельная: 5,4 m²
Гараж: 34,8 m²
Терраса: 0,0 m² / 2,1 m²

№6 - Z17, 200 кв.м - просторный комфортный одноэтажный дом с гаражом для двух машин.

/ 7
Получить консультацию
Мы вам перезвоним!
Укажите, пожалуйста, номер телефона. Мы перезвоним Вам в ближайшее время!

ПЛОЩАДЬ И ГАБАРИТЫ

площадь дома/общая площадь: 199,9 / 207,7 m²
площадь застройки: 300,0 m²
строительный объем: 2 151,68 m³
высота дома: 6,79 m
угол наклона кровли: 30°
площадь кровли: 349 m²

ТЕХНОЛОГИЯ СТРОИТЕЛЬСТВА

тип фундамента: ленточный сборно-монолитный
Кровля: цементно-песчаная черепица/металлочерепица/керамическая черепица
Технология: каменный
Тип перекрытия: монолитное

ОПИСАНИЕ

Проект Z17 — представляет собой просторный комфортный одноэтажный дом с многоскатной крышей и с гаражом для двух машин. Его классический внешний вид понравиться всем любителям традиционного стиля, а функциональный интерьер наполнит жизнь дома комфортом и уютом.

Преимущества проектаZ17:

удобное размещение всех помещений на одном уровне избавляет от необходимости перехода с этажа на этаж;
большое количество окон, а также расположение окон в гостиной с трех сторон, способствует прекрасному естественному освещению комнат;
четкое разделение дома на дневную и ночную зоны, позволяет сделать приватную часть дома закрытой от посторонних взглядов;
просторный холл является удобным связующим звеном между всеми помещениями в доме;
большая площадь гостиной — главная отличительна черта Z17 — делает дневную зону очень просторной и комфортной;
небольшая стенная перегородка в гостиной аккуратно разграничивает зону отдыха и зону приготовления пищи, и при этом не нарушает единства всей дневной зоны;
кладовая с доступом из кухни очень практична для хранения хозяйственной утвари;
несколько технических помещений позволяют сделать хранение инвентаря и инструментов более удобным;
прямой переход из гаража в дом значительно упрощает перенос покупок;
две полу крытых террасы порадуют в любую погоду отличным шашлыком.

ХАРАКТЕРИСТИКИ

Прихожая: 7,3 m²
Кладовая: 3,8 m²
Кухня: 15,0 m²
Гостиная+ столовая: 46,3 m²
Холл: 19,2 m²
Сан. узел: 3,6 m²
Ванная комната: 7,8 m²
Спальня: 19,4 m²
Спальня: 19,0 m²
Спальня: 13,8 m²
Хоз. помещение: 5,4 m²
Котельная: 5,6 m²
Гараж: 33,5 m²
Терраса: 0,0 m² / 7,8 m²

№7 - Z211, 92 кв.м - компактный дом с дополнительной спальней на первом этаже, простой в строительстве, недорогой в эксплуатации.

/ 15
Получить консультацию
Мы вам перезвоним!
Укажите, пожалуйста, номер телефона. Мы перезвоним Вам в ближайшее время!

ПЛОЩАДЬ И ГАБАРИТЫ

площадь дома/общая площадь: 92,1 / 96,2 m²
площадь застройки: 92,3 m²
строительный объем: 510 m³
высота дома: 7,1 m
угол наклона кровли: 40°
площадь кровли: 105,2 m²

ТЕХНОЛОГИЯ СТРОИТЕЛЬСТВА

тип фундамента: ленточный сборно-монолитный
Кровля: цементно-песчаная черепица/металлочерепица/керамическая черепица
Технология: каменный
Тип перекрытия: монолитное

ОПИСАНИЕ

Проект Z211 представляет собой компактный и аккуратный дом с дополнительной спальней на первом этаже. Простой в строительстве, недорогой в эксплуатации он станет выгодным вложением средств.

Преимущества проекта Z211:

Простая конструкция дома, двускатная крыша и небольшая площадь способствуют сокращению затрат на строительство и содержание дома.
Открытая кухня визуально делает гостиную больше. При необходимости ее можно отделить стенной перегородкой.
Расположение выхода на террасу около столовой позволит быстрее и удобнее накрыть обеденный стол на террасе.
Открытая терраса способствует лучшему естественному освещению.
Большие площади остекления гарантируют прекрасное освещение дневной зоны в течение всего дня, дарят ни с чем несравнимое ощущение единства с окружающей природой.
Дополнительная комната на первом этаже поможет удобнее организовать ежедневную домашнюю деятельность, к тому же она очень удобна для семей с маленькими детьми и пожилых людей. При необходимости можно изменить ее площадь, либо отказаться от нее.
Хозяйственное помещение удачно совмещает в себе функции котельной, подсобного помещений и кухонной кладовой, тем самым больше пространства оставляя для жилых помещений.
Санузлы расположенные один под другим облегчают установку в доме водопроводной системы.

ХАРАКТЕРИСТИКИ

Прихожая: 3,2 m²
Ванная комната: 2,9 m²
Холл: 2,1 m²
Кухня: 7,1 m²
Гостиная+ столовая: 20,2 m²
Спальня: 10,9 m²
Терраса: 0,0 m² / 4,1 m²

№8 - Z14, 131 кв.м - уютный мансардный дом с дополнительной спальней на первом этаже.

/ 13
Получить консультацию
Мы вам перезвоним!
Укажите, пожалуйста, номер телефона. Мы перезвоним Вам в ближайшее время!

ПЛОЩАДЬ И ГАБАРИТЫ

площадь дома/общая площадь: 131,2 / 137,7 m²
площадь застройки: 123,5 m²
строительный объем: 510 m³
высота дома: 7,9 m
угол наклона кровли: 40°
площадь кровли: 165,13 m²

ТЕХНОЛОГИЯ СТРОИТЕЛЬСТВА

тип фундамента: ленточный сборно-монолитный
Кровля: цементно-песчаная черепица/металлочерепица/керамическая черепица
Технология: каменный
Тип перекрытия: монолитное

ОПИСАНИЕ

Функциональный и уютный дом Z14 прост и экономичен в строительстве и эксплуатации. Его главное преимущество — наличие дополнительной спальни на первом этаже, что важно для людей пожилого возраста и родителей маленьких детей.

Преимущества проекта Z14:

внешние традиционные очертания дома прекрасно сочетаются с современными решениями интерьера;
простая форма, двускатная крыша, небольшая площадь делают дом выгодным в строительстве и эксплуатации;
дополнительная комната на первом этаже делает дом более функциональным;
камин, расположенный в центре, разграничивает функциональные зоны дневной части дома: гостиную, столовую, кухню; и конечно, создает домашний уют;
открытая кухня зрительно увеличивает пространство дневной зоны, в то же время она деликатно отделена от гостиной камином; при необходимости ее можно сделать полностью закрытой;
кладовая доступная из кухни очень удобна для хранения кухонной утвари и техники;
большое хозяйственное помещение позволяет выбрать для дома любую систему отопления;
санузлы расположенные один над другим значительно упрощают установку водопроводной системы;
большая ванная комната на мансарде может вместить всю необходимую сантехнику.

ХАРАКТЕРИСТИКИ

Прихожая: 3,0 m²
Холл: 6,3 m²
Кухня + кладовая: 13,1 m²
Гостиная: 21,9 m²
Спальня: 13,0 m²
Ванная комната: 4,0 m²
Котельная: 5,5 m²
Терраса: 0,0 m² / 6,5 m²
Холл: 4,4 m²
Спальня: 17,2 m²
Спальня: 17,6 m²
Спальня: 15,7 m²
Ванная комната: 9,5 m²

№9 - Z10, 136 кв.м - одноэтажный дом с многоскатной кровлей, эркером и камином на террасе.

/ 15
Получить консультацию
Мы вам перезвоним!
Укажите, пожалуйста, номер телефона. Мы перезвоним Вам в ближайшее время!

ПЛОЩАДЬ И ГАБАРИТЫ

площадь дома/общая площадь: 136,1 / 141,4 m²
площадь застройки: 201,9 m²
строительный объем: 1 170 m³
высота дома: 7,08 m
угол наклона кровли: 30°
площадь кровли: 261,69 m²

ТЕХНОЛОГИЯ СТРОИТЕЛЬСТВА

тип фундамента: ленточный сборно-монолитный
Кровля: цементно-песчаная черепица/металлочерепица/керамическая черепица
Технология: каменный
Тип перекрытия: монолитное

ОПИСАНИЕ

ПроектZ10 представляет собой красивый и удобный одноэтажный дом с многоскатной кровлей, эркером и камином на террасе. Его внешний традиционный архитектурный стиль прекрасно сочетается с современной практичной планировкой интерьера.

Преимущества проекта Z10:

комфорт в использовании помещений на одном уровне исключает необходимость переходить с этажа на этаж;
открытая кухня зрительно увеличивает пространство дневной зоны;
вместительная кладовая с входом из кухни очень удобна для хранения кухонного инвентаря и запасов;
эркер рядом с кухней деликатно создает отдельную уютную обеденную зону, отделяя ее от гостиной;
двойной камин и согреет гостиную, и поможет вам приготовить отличный шашлык на террасе. К тому же его обустройство выгоднее установки двух отдельных каминов.
две двойные стеклянные двери, ведущие на террасу являются хорошим источником естественного света и дарят ощущение единства с природой;
крытая терраса дает возможность наслаждаться свежим воздухом в любую погоду;
возможность обустройства жилой мансарды на чердаке позволит увеличить жилую площадь приблизительно на 40 м2.

ХАРАКТЕРИСТИКИ

Прихожая:4,8 m²
Холл: 11,0 m²
Кухня: 13,5 m²
Кладовая: 4,1 m²
Сан. узел: 1,7 m²
Спальня: 18,4 m²
Спальня: 16,9 m²
Ванная комната: 8,3 m²
Спальня: 15,5 m²
Котельная: 5,6 m²
Гостиная+ столовая: 36,2 m²
Терраса: 0,0 m² / 5,3 m²

№10 - Z379, 379 кв.м - проект стильного одноэтажного дома с функциональной планировкой

/ 7
Получить консультацию
Мы вам перезвоним!
Укажите, пожалуйста, номер телефона. Мы перезвоним Вам в ближайшее время!

ПЛОЩАДЬ И ГАБАРИТЫ

площадь дома/общая площадь: 170,2 / 184,9 m²
площадь застройки: 274,0 m²
строительный объем: 995,62 m³
высота дома: 6,2 m
угол наклона кровли: 22°
площадь кровли: 326 m²

ТЕХНОЛОГИЯ СТРОИТЕЛЬСТВА

тип фундамента: ленточный сборно-монолитный
Кровля: цементно-песчаная черепица/металлочерепица/керамическая черепица
Технология: каменный
Тип перекрытия: монолитное

ОПИСАНИЕ

Z379 проект стильного одноэтажного дома с функциональной планировкой. Дом подойдет как ценителям традиционного стиля, так и сторонникам современной архитектуры.

Преимущества проекта Z379:

Яркая окраска фасада со штукатуркой бежевого цвета и вставками из древесины привлекает даже самых требовательных людей.
Чтобы помещения были светлыми и приносили радость пребывания в них, с каждой стороны дома предусмотрены большие площади остекления.
Помещение, запроектированное как кабинет, может выполнять и другие функции, например комнаты для гостей или спортзала.
В центре изящной столовой находится камин для поддержания тепла домашнего очага.
Здание грамотно разделено на 2 части: ночную и дневную.
Центром летнего отдыха может стать просторная крытая терраса.
Высокий уровень комфорта проживания обеспечен наличием 3 санузлов.
Проект Z379 – это дом современного человека, ценящего комфорт, уют и свободу!

ХАРАКТЕРИСТИКИ

Прихожая: 5,1 m²
Спальня: 11,6 m²
Спальня: 11,7 m²
Спальня: 14,3 m²
Спальня: 11,8 m²
Кухня: 8,1 m²
Холл: 13,5 m²
Ванная комната: 3,6 m²
Ванная комната: 5,5 m²
Гостиная+ столовая: 41,1 m²
Котельная: 6,9 m²
Хоз. помещение: 4,5 m²
Кладовая: 2,9 m²
Гараж: 20,7 m²
Гардеробная: 4,2 m²
Сан. узел: 2,3 m²

№11 - Z83, 214 кв.м - просторный комфортабельный дом с необычной планировкой второго этажа.

/ 8
Получить консультацию
Мы вам перезвоним!
Укажите, пожалуйста, номер телефона. Мы перезвоним Вам в ближайшее время!

ПЛОЩАДЬ И ГАБАРИТЫ

площадь дома/общая площадь: 214,3 / 226,5 m²
площадь застройки: 160,3 m²
строительный объем: 850 m³
высота дома: 8,09 m
угол наклона кровли: 40°
площадь кровли: 220,87 m²

ТЕХНОЛОГИЯ СТРОИТЕЛЬСТВА

тип фундамента: ленточный сборно-монолитный
Кровля: цементно-песчаная черепица/металлочерепица/керамическая черепица
Технология: каменный
Тип перекрытия: монолитное

ОПИСАНИЕ

Просторный комфортабельный дом Z83 по достоинству оценят сторонники традиционной архитектуры: четырехскатная крыша, отделка из дерева и облицовочного камня создают ощущение семейного уюта. Проект выделяется среди других необычной планировкой второго этажа.

Преимущества проекта Z83:

Наличие пяти спален позволяют чувствовать себя комфортно достаточно большой семье.
Расположение трех спален на первом этаже дает возможность вести строительство поэтапно, либо же отказать от мансарды, если в ней нет необходимости.
Частично открытая кухня зрительно увеличивает пространство дневной зоны, и в то же время деликатно отделяется от столовой и гостиной.
Крытая терраса позволит приготовить отличное барбекю в любую погоду, а широкие балконные двери дарят ощущение единства внутреннего и внешнего пространства.
Отсутствие окон в боковых стенах дома дает возможность разместить его на более компактном участке.
Кладовая расположенная рядом с кухней очень практична для быстрого доступа к хозяйственной утвари и запасам.
Холл на мансарде может служить дополнительной зоной отдыха.
Большая ванная мансарды сможет вместить любое сантехническое оборудование.
Классический стиль дома придется по вкусу сторонникам традиционной архитектуры.

ХАРАКТЕРИСТИКИ

Прихожая: 4,0 m²
Холл + лестница: 9,6 m²
Спальня: 9,8 m²
Ванная комната: 5,4 m²
Спальня: 15,3 m²
Спальня: 12,7 m²
Гостиная+ столовая: 33,9 m²
Кухня: 11,6 m²
Сан. узел: 1,4 m²
Котельная: 3,8 m²
Терраса: 0,0 m² / 4,4 m²

№12 - Z26, 24 кв.м - одноэтажный дом с фронтальным гаражом для двух автомобилей.

/ 15
Получить консультацию
Мы вам перезвоним!
Укажите, пожалуйста, номер телефона. Мы перезвоним Вам в ближайшее время!

ПЛОЩАДЬ И ГАБАРИТЫ

площадь дома/общая площадь: 214,0 / 220,0 m²
площадь застройки: 300,0 m²
строительный объем: 1 123,64 m³
высота дома: 7,55 m
угол наклона кровли: 30°
площадь кровли: 389,65 m²

ТЕХНОЛОГИЯ СТРОИТЕЛЬСТВА

тип фундамента: ленточный сборно-монолитный
Кровля: цементно-песчаная черепица/металлочерепица/керамическая черепица
Технология: каменный
Тип перекрытия: монолитное

ОПИСАНИЕ

Просторный одноэтажный дом Z26 с фронтальным гаражом для двух автомобилей привлекает внимание своей основательной добротностью, простым и в тоже время элегантным дизайном фасадов. Простые формы дома разнообразит интересное треугольное окно мансарды.

Преимущества проекта Z26:

Расположение окон в дневной зоне с трех сторон (северной, западной, южной) гарантируют хорошее естественное освещение в течение всего дня.
Открытая кухня зрительно увеличивает пространство дневной зоны. При желании ее можно сделать полностью закрытой.
Кладовая расположенная рядом с кухней будет по достоинству оценена любой хозяйкой.
Расположенный в центре гостиной камин поможет создать уютную домашнюю атмосферу, а также согреет в холодную погоду.
Крытая терраса позволит приготовить отличный барбекю на свежем воздухе в любую погоду.
Прямой переход из гаража в дом упростит перенос вещей из машины в дом.
Большая ванная комната ночной зоны сможет вместить всю необходимую сантехнику. При необходимости она может быть разделена на две меньших, с прямым доступом к одной из них из спальни.
В каждой спальне предусмотрено место для вместительных шкафов.
Проект предусматривает возможность обустройства жилой мансарды на чердаке, что позволит увеличить площадь дома приблизительно на 90 м2.
Традиционный характер дома будет по достоинству оценен сторонниками классического стиля в архитектуре.

ХАРАКТЕРИСТИКИ

Прихожая: 8,0 m²
Холл: 10,9 m²
Гостиная+ столовая: 47,2 m²
Кухня: 16,8 m²
Кладовая: 4,9 m²
Котельная:  5,6 m²
Сан. узел: 3,6 m²
Холл: 11,3 m²
Спальня: 22,1 m²
Спальня: 17,9 m²
Ванная комната: 9,4 m²
Спальня: 14,6 m²
Гараж: 36,5 m²
Хоз. помещение: 5,2 m²
Терраса: 0,0 m² / 6,0 m²

№13 - Z67 A, 130 кв.м - одноэтажный коттедж с четырьмя спальнями

/ 15
Получить консультацию
Мы вам перезвоним!
Укажите, пожалуйста, номер телефона. Мы перезвоним Вам в ближайшее время!

ПЛОЩАДЬ И ГАБАРИТЫ

площадь дома/общая площадь: 129,9 / 134,1 m²
площадь застройки: 189,5 m²
строительный объем: 810 m³
высота дома: 5,9 m
угол наклона кровли: 20°
площадь кровли: 237,2 m²

ТЕХНОЛОГИЯ СТРОИТЕЛЬСТВА

тип фундамента: ленточный сборно-монолитный
Кровля: цементно-песчаная черепица/металлочерепица/керамическая черепица
Технология: каменный
Тип перекрытия: монолитное

ОПИСАНИЕ

Z67 А – это одноэтажный коттедж с четырьмя спальнями порадует своей простотой и многофункциональностью. Дизайн дома в классическом стиле прекрасно сочетается с его внутренней планировкой.

Преимущества проекта Z67 А:
На небольшой площади разместились четыре спальни за счет оптимизации площади вспомогательных помещений;
Внутреннее пространство вызывает ощущение света и свободы за счет совмещенной с гостиной кухней;
Зона сна предусмотрительно отделена от дневной, что позволит отдохнуть в тишине и скрыть от глаз интимную часть дома;
На прекрасной крытой террасе можно посидеть с чашечкой чая и книгой в хорошую погоду и в дождливые вечера, наслаждаясь свежим воздухом.

ХАРАКТЕРИСТИКИ

Прихожая: 5,1 m²
Котельная: 2,6 m²
Холл: 4,0 m²
Холл: 6,9 m²
Кухня: 14,6 m²
Гостиная+ столовая: 27,4 m²
Хоз. помещение: 1,6 m²
Ванная комната: 6,7 m²
Спальня: 15,1 m²
Спальня: 13,8 m²
Спальня: 18,9 m²
Спальня: 11,5 m²
Ванная комната: 1,7 m²
Терраса: 0,0 m² / 4,2 m²

№14 - Z123, 156 кв.м - одноэтажный дом традиционного характера с тремя удобными спальнями и встроенным гаражом.

/ 15
Получить консультацию
Мы вам перезвоним!
Укажите, пожалуйста, номер телефона. Мы перезвоним Вам в ближайшее время!

ПЛОЩАДЬ И ГАБАРИТЫ

площадь дома/общая площадь: 156,4 / 162,5 m²
площадь застройки: 228,0 m²
строительный объем: 810 m³
высота дома: 6,7 m
угол наклона кровли: 30°
площадь кровли: 287 m²

ТЕХНОЛОГИЯ СТРОИТЕЛЬСТВА

тип фундамента: ленточный сборно-монолитный
Кровля: цементно-песчаная черепица/металлочерепица/керамическая черепица
Технология: каменный
Тип перекрытия: монолитное

ОПИСАНИЕ

Проект Z123 представляет собой одноэтажный дом традиционного характера с тремя удобными спальнями и встроенным гаражом.

Преимущества проекта Z123:

Расположение террасы сбоку от гостиной за гаражом создает полностью крытую площадку с минимальным затенением дневной зоны.
Одноуровневая планировка придется по вкусу тем, кто ценит комфорт и функциональность одноэтажных домов. Четкое разделение ночной и дневной зоны позволяет скрыть приватную жизнь дома от любопытных взглядов.
Отсутствие несущих стен в дневной зоне позволяет вносить различные изменения в ее планировку. Кухню и столовую можно отделить стенными перегородками. Можно отказаться от кухонной кладовой для увеличения площади кухни.
Открытая кухня увеличивает зрительно гостиную и способствует ее лучшему освещению.
Крытая терраса позволит приготовить вкусный шашлык или гриль в любую погоду.
Большие площади остекления обеспечивают хорошее естественное освещение в течение всего дня.
Ванная комната удобно совмещена с прачечной.
Две кухонные кладовые смогут вместить всю необходимую кухонную технику и запасы.
Традиционный стиль понравится сторонникам классической архитектуры.

ХАРАКТЕРИСТИКИ

Прихожая: 4,8 m²
Холл: 10,1 m²
Гостиная+ столовая: 34,6 m²
Кухня: 16,6 m²
Сан. узел: 2,7 m²
Спальня:16,9 m² 
Холл: 4,0 m²
Спальня: 15,7 m²
Ванная комната: 6,0 m²
Спальня: 13,8 m²
Гараж: 19,6 m²
Кладовая: 1,9 m²
Котельная: 7,0 m²
Терраса: 0,0 m² / 6,1 m²
Прачечная: 2,7 m²

№15 - Z77, 222 кв.м - проект просторного одноэтажного дома с возможностью обустройства мансарды.

/ 7
Получить консультацию
Мы вам перезвоним!
Укажите, пожалуйста, номер телефона. Мы перезвоним Вам в ближайшее время!

ПЛОЩАДЬ И ГАБАРИТЫ

площадь дома/общая площадь: 221,9 / 231,3 m²
площадь застройки: 318,2 m²
строительный объем:1 225 m³
высота дома: 6,98 m
угол наклона кровли: 30°
площадь кровли: 377,2 m²

ТЕХНОЛОГИЯ СТРОИТЕЛЬСТВА

тип фундамента: ленточный сборно-монолитный
Кровля: цементно-песчаная черепица/металлочерепица/керамическая черепица
Технология: каменный
Тип перекрытия: монолитное

ОПИСАНИЕ

Разработка Z77 представляет проект просторного одноэтажного дома с возможностью обустройства мансарды (при условии внесения в проект соответствующих изменений). Экстерьер великолепного песочного оттенка даже визуально придаёт дому теплоты и уюта. Это настроение поддерживает внутренняя планировка. Все необходимые помещения спланированы на первом уровне. Дневная зона открытого типа вынесена к фронтальной части. Из гостиной с угловым камином предусмотрен выход на террасу. В дальнем блоке расположена ночная зона. Одно из преимуществ планировки — две ванные комнаты, расположенные у спален. Хозяйственная часть с гаражом и подсобными помещениями спроектирована справа. В данном проекте на мансарде можно устроить помещения по желанию хозяев.

ХАРАКТЕРИСТИКИ

Спальня: 17,4 m²
Спальня: 17,3 m²
Ванная комната: 7,3 m²
Холл: 20,5 m²
Спальня: 17,0 m²
Тех. помещение: 15,6 m²
Гостиная+ столовая: 51,0 m²
Сан. узел: 4,5 m²
Кухня: 18,6 m²
Кладовая: 3,3 m²
Прихожая: 6,5 m²
Котельная: 9,3 m²
Терраса: 0,0 m² / 9,4 m²
Гараж: 33,6 m²

№16 - Z80, 197 кв.м - одноэтажный дом в скандинавском стиле с дополнительной фронтальной террасой и гаражом на две машины.

/ 7
Получить консультацию
Мы вам перезвоним!
Укажите, пожалуйста, номер телефона. Мы перезвоним Вам в ближайшее время!

ПЛОЩАДЬ И ГАБАРИТЫ

площадь дома/общая площадь: 197,1 / 201,9 m²
площадь застройки: 290,0 m²
строительный объем: 1 200 m³
высота дома: 5,89 m
угол наклона кровли: 25°
площадь кровли: 346,25 m²

ТЕХНОЛОГИЯ СТРОИТЕЛЬСТВА

тип фундамента: ленточный сборно-монолитный
Кровля: цементно-песчаная черепица/металлочерепица/керамическая черепица
Технология: каменный
Тип перекрытия: монолитное

ОПИСАНИЕ

Проект Z80 представляет собой одноэтажный дом в скандинавском стиле с дополнительной фронтальной террасой и гаражом на две машины.

Преимущества проекта Z80:

Комфорт в использовании помещений на одном уровне предоставляет быстрый доступ к любой из комнат.
Сложная форма дневной зоны позволяет расположить кухню гостиную и столовую в уютных подзонах.
Открытая кухня зрительно увеличивает пространство дневной зоны, хотя при необходимости ее можно отделить стенной перегородкой.
Несколько выходов на террасы позволяют более рационально и удобно использовать пространство вокруг дома.
Крытая терраса около гостиной подарит минуты прекрасного летнего отдыха совсем рядом с домом.
Расположение выхода на террасу рядом со столовой дает возможность быстро и удобно перенести завтрак или обед на террасу.
Расположение кухни и гостиной со стороны входа позволяют расположить дом на участке с южным въездом.
Прямой переход из гаража в дом упростит перенос вещей в/из машины.
Одна из спален обустроена собственной ванной комнатой и гардеробной, каждая спальня имеет выход на террасу.
Возможность обустройства мансарды позволит увеличить жилую площадь дома, а также позволит вести строительство в несколько этапов, по мере потребностей.
Традиционный стиль дома по достоинству оценят любители классической архитектуры.

ХАРАКТЕРИСТИКИ

Спальня: 17,2 m²
Ванная комната:11,0 m² 
Сан. узел: 5,3 m²
Котельная: 8,0 m²
Спальня: 13,2 m²
Спальня: 12,5 m²
Холл: 10,1 m²
Столовая: 17,3 m²
Гостиная: 27,1 m²
Прихожая: 15,1 m²
Гараж: 44,4 m² 
Кухня: 9,9 m²
Гардеробная: 6,2 m²
Терраса: 0,0 m² / 4,8 m²

№17 - Z11, 52 кв.м. - маленький одноэтажный дом с двускатной кровлей, недорогой в строительстве и эксплуатации.

/ 15
Получить консультацию
Мы вам перезвоним!
Укажите, пожалуйста, номер телефона. Мы перезвоним Вам в ближайшее время!

ПЛОЩАДЬ И ГАБАРИТЫ

площадь дома/общая площадь: 52,3 / 59,2 m²
площадь застройки: 104,0 m²
строительный объем: 235 m³
высота дома: 5,75 m
угол наклона кровли: 30°
площадь кровли: 106,2 m²

ТЕХНОЛОГИЯ СТРОИТЕЛЬСТВА

тип фундамента: ленточный сборно-монолитный
Кровля: цементно-песчаная черепица/металлочерепица/керамическая черепица
Технология: каменный
Тип перекрытия: монолитное

ОПИСАНИЕ

Проект Z11—представляет собой маленький одноэтажный дом с двускатной кровлей. Он объединяет в себе достаточно много преимуществ: компактный, недорогой в строительстве и эксплуатации и, вместе с тем, стильный и уютный. Несмотря на свои маленькие размеры, он полностью оснащен всем необходимым для постоянного проживания.

Преимущества Z11:

простая форма дома, его небольшая площадь, двускатная крыша, помогают значительно сократить строительные и эксплуатационные расходы;
комфорт в использовании помещений на одном уровне исключает необходимость перехода с этажа на этаж, что особенно актуально для людей пожилого возраста, и маленьких детей;
практичная и функциональная планировка позволяет максимально рационально использовать всю площадь дома;
отсутствие внутренних несущих стен дает возможность вносить многочисленные изменения в планировку: например, можно отказаться от шкафа в холле в пользу гостиной, а можно увеличить площадь спальни за счет гостиной;
открытая кухня зрительно увеличивает пространство дневной зоны, способствует ее лучшему освещению, что по достоинству оценят любители открытых планировок.

ХАРАКТЕРИСТИКИ

Прихожая: 3,4 m²
Кухня: 5,2 m²
Спальня: 9,5 m²
Гостиная: 18,4 m²
Спальня: 7,5 m²
Холл: 5,0 m²
Ванная комната: 3,4 m²
Терраса: 0,0 m² / 6,9 m²

№18 - Z253, 77 кв.м - компактный, уютный одноэтажный дом с двускатной крышей.

/ 14
Получить консультацию
Мы вам перезвоним!
Укажите, пожалуйста, номер телефона. Мы перезвоним Вам в ближайшее время!

ПЛОЩАДЬ И ГАБАРИТЫ

площадь дома/общая площадь: 76,9 / 80,7 m²
площадь застройки: 125,6 m²
строительный объем: 577,9 m³
высота дома: 6,3 m
угол наклона кровли: 30°
площадь кровли: 145 m²

ТЕХНОЛОГИЯ СТРОИТЕЛЬСТВА

тип фундамента: ленточный сборно-монолитный
Кровля: цементно-песчаная черепица/металлочерепица/керамическая черепица
Технология: каменный
Тип перекрытия: монолитное

ОПИСАНИЕ

Z253 - компактный уютный одноэтажный дом с двускатной крышей.

Достоинства проекта Z253:

Экстерьер проекта выполнен в классическом стиле, на что указывают светлые тона штукатурки в сочетании с панелями горчичного цвета.
Данный дом отлично подойдёт для небольшой семьи с одним или двумя детьми. На небольшой площади размещены все необходимые комнаты, чтобы каждый домочадец смог чувствовать себя независимо и комфортно.
Просторная гостиная совмещённая со столовой станет прекрасным местом для проведения семейных вечеров.
Дом всегда будет казаться светлым и просторным благодаря наличию в каждой из комнат окон большого размера.
Если есть желание отдохнуть на свежем воздухе, прекрасно подойдет предусмотреная на заднем дворе терраса.
Проект Z253 – хороший вариант для застройщиков с ограниченным бюджетом. Дом комфортен для круглогодичного проживания небольшой семьи.

ХАРАКТЕРИСТИКИ

Терраса: 0,0 m² / 3,8 m²
Гостиная: 20,6 m²
Кухня: 10,2 m²
Ванная комната: 5,5 m²
Холл: 7,2 m²
Прихожая: 2,7 m²
Котельная: 6,0 m²
Спальня: 12,2 m²
Спальня: 12,5 m²

№19 - Z310, 147 кв.м - комфортный одноэтажный дом в традиционном стиле

/ 10
Получить консультацию
Мы вам перезвоним!
Укажите, пожалуйста, номер телефона. Мы перезвоним Вам в ближайшее время!

ПЛОЩАДЬ И ГАБАРИТЫ

площадь дома/общая площадь: 146,5 / 167,0 m²
площадь застройки: 264,3 m²
строительный объем: 1 020 m³
высота дома: 6,04 m
угол наклона кровли: 25°
площадь кровли: 261,58 m²

ТЕХНОЛОГИЯ СТРОИТЕЛЬСТВА

тип фундамента: ленточный сборно-монолитный
Кровля: цементно-песчаная черепица/металлочерепица/керамическая черепица
Технология: каменный
Тип перекрытия: монолитное

ОПИСАНИЕ

Проект Z310 представляет комфортный одноэтажный дом в традиционном стиле. Классическая четырёхугольная форма с простой четырёхскатной крышей интересно обыграна ярким цветовым оформлением.

Всё необходимое спланировано на одном уровне. В правой части сформирована открытая дневная зона. У внутренней стены устроен камин, который зимой послужит дополнительным источником отопления. В кухне, расположенной с фронтальной стороны, выделено место под кладовую.

В ночной зоне находятся четыре спальни. Важное преимущество проекта — в каждой из комнат есть собственная гардеробная.

В центре дома спроектирован сантехнический блок, в который входят общая и отдельная хозяйская ванная, а также прачечная.

ХАРАКТЕРИСТИКИ

Гостиная+ столовая: 33,2 m²
Гардеробная: 4,0 m²
Спальня: 11,9 m²
Спальня: 13,4 m²
Прачечная: 4,4 m²
Ванная комната: 8,8 m²
Холл: 4,9 m²
Кухня: 13,9 m²
Гардеробная: 2,9 m²
Гардеробная: 3,3 m²
Спальня: 11,5 m²
Спальня: 11,6 m²
Сан. узел: 5,0 m²
Холл: 7,7 m²
Прихожая: 4,3 m²
Гардеробная: 3,0 m²
Гардеробная: 2,7 m²
Терраса: 0,0 m² / 20,5 m²

№20 - Z131, 137 кв.м - проект традиционного одноэтажного дома с возможностью обустройства мансарды.

/ 15
Получить консультацию
Мы вам перезвоним!
Укажите, пожалуйста, номер телефона. Мы перезвоним Вам в ближайшее время!

ПЛОЩАДЬ И ГАБАРИТЫ

площадь дома/общая площадь: 136,9 / 141,5 m²
площадь застройки: 213,9 m²
строительный объем: 580 m³
высота дома: 7,84 m
угол наклона кровли: 35°
площадь кровли: 302,04 m²

ТЕХНОЛОГИЯ СТРОИТЕЛЬСТВА

тип фундамента: ленточный сборно-монолитный
Кровля: цементно-песчаная черепица/металлочерепица/керамическая черепица
Технология: каменный
Тип перекрытия: монолитное

ОПИСАНИЕ

Проект Z131 представляет собой традиционный одноэтажный дом с возможностью обустройства мансарды. Оформление крыльца и террасы с помощью колонн придают простым формам строения элегантный и в то же время уютный характер.

Преимущества проекта Z131:

Простая форма дневной зоны создает ощущение свободы открытого пространства.
Четкое разделение ночной и дневной зон позволяет скрыть приватную часть дома от любопытных взглядов.
Открытая кухня зрительно увеличивает пространство гостиной и способствует ее лучшему освещению.
Частично крытая терраса поможет приготовить вкусный шашлык или гриль на свежем воздухе даже в непогоду.
Расположение окон в гостиной с трех сторон обеспечивает хорошее освещение в течение всего дня.
Расположение технического помещения за гаражом с выходом в сад удобно для хранения инструментов и садового инвентаря.
Достаточно большая ванная комната сможет вместить в себя всю необходимую сантехнику и прачечную.
Кладовая, расположенная в кухне, очень удобна для быстрого доступа к хозяйственным принадлежностям и запасам.
Возможность обустройства жилой мансарды на чердаке позволит значительно расширить жилую площадь дома по мере необходимости, а также вести строительные работы в несколько этапов.
Архитектурный стиль дома по достоинству оценят сторонники традиционной архитектуры.

ХАРАКТЕРИСТИКИ

Прихожая: 4,1 m²
Холл: 9,1 m²
Ванная комната: 3,1 m²
Гостиная+ столовая: 25,5 m²
Кухня: 15,5 m²
Кладовая: 2,7 m²
Гардеробная: 5,6 m²
Спальня: 14,4 m²
Спальня: 14,0 m²
Ванная комната: 6,2 m²
Спальня: 11,1 m²
Гараж: 19,3 m²
Котельная: 6,3 m²
Терраса: 0,0 m² / 4,6 m²

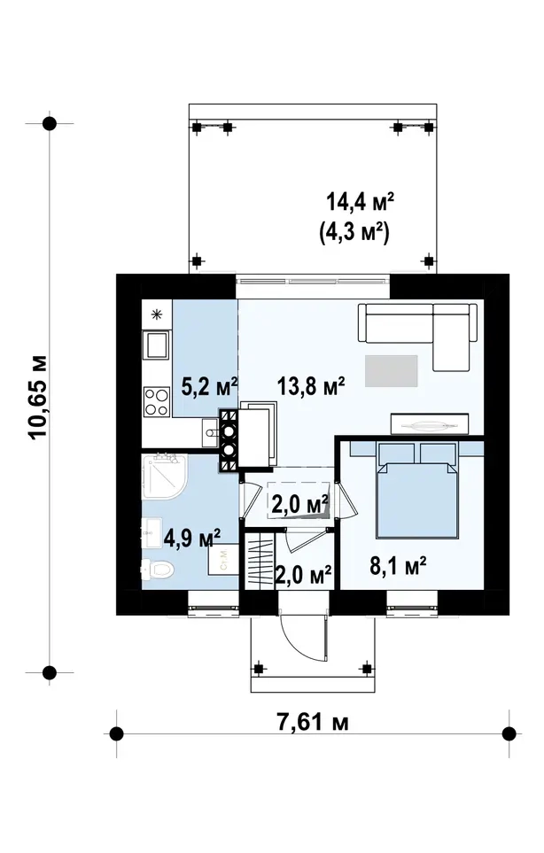
№21 - Z352, 36 кв.м - проект уютного гостевого домика

/ 12
Получить консультацию
Мы вам перезвоним!
Укажите, пожалуйста, номер телефона. Мы перезвоним Вам в ближайшее время!

ПЛОЩАДЬ И ГАБАРИТЫ

площадь дома/общая площадь: 36,0 / 40,3 m²
площадь застройки: 69,7 m²
строительный объем: 350 m³
высота дома: 6,37 m
угол наклона кровли: 40° / 14°
площадь кровли: 113,07 m²

ТЕХНОЛОГИЯ СТРОИТЕЛЬСТВА

тип фундамента: ленточный сборно-монолитный
Кровля: цементно-песчаная черепица/металлочерепица/керамическая черепица
Технология: каменный
Тип перекрытия: монолитное

ОПИСАНИЕ

Z352 представляет собой проект уютного гостевого домика с просторной террасой, выполненный в традиционном стиле с современными элементами отделки. Несмотря на небольшую площадь, дом комфортен для всесезонного проживания в нем.

Чем привлекателен проект Z352:

Насладиться отдыхом и спокойствием на природе в любую погоду позволяет крытая терраса;
Дом выгоден в строительстве и удобен в эксплуатации;
В доме есть все необходимые помещения, обеспечивающие комфортное проживание;
Проект подходит для реализации на небольших и узких земельных наделах;
Деревянные элементы декора фасада придают строению домашний уютный характер.
Наш каталог современных домов содержит немало проектов с небольшой площадью, которые могут служить гостевым домом, дачным или полноценным жилым. Их планировки удобны и функциональны, что не позволяет жильцам ощутить чувство стесненности и дискомфорта. Таковым является и дом Z352.

ХАРАКТЕРИСТИКИ

Прихожая: 2,0 m²
Холл: 2,0 m²
Спальня: 8,1 m²
Ванная комната: 4,9 m²
Кухня: 5,2 m²
Гостиная: 13,8 m²
Терраса: 0,0 m² / 4,3 m²

№22 - Z378, 188 кв.м - проект одноэтажного дома с гаражом на две машины

/ 7
Получить консультацию
Мы вам перезвоним!
Укажите, пожалуйста, номер телефона. Мы перезвоним Вам в ближайшее время!

ПЛОЩАДЬ И ГАБАРИТЫ

площадь дома/общая площадь: 188,3 / 221,2 m²
площадь застройки: 392,1 m²
строительный объем: 1 146,45 m³
высота дома: 6,6 m
угол наклона кровли: 22°
площадь кровли: 368,9 m²

ТЕХНОЛОГИЯ СТРОИТЕЛЬСТВА

тип фундамента: ленточный сборно-монолитный
Кровля: цементно-песчаная черепица/металлочерепица/керамическая черепица
Технология: каменный
Тип перекрытия: монолитное

ОПИСАНИЕ

Z378 – это проект одноэтажного дома с гаражом на две машины, выполненный в современном стиле, с просторной террасой на первом этаже. Дизайн дома является актуальным совершено для любой местности.

Достоинства проекта Z378:

Удобный доступ во все помещения, за счет отсутствия лестницы. Данное преимущество дома является весомым для семей, где есть старики и дети;
Проект подразумевает четкое распределение пространства на дневную и ночную зоны, что позволяет скрывать приватную жизнь от любопытных гостей;
Удобство распаковки покупок обеспечено прямым сообщением дома с гаражом;
Терраса позволяет с комфортом отдохнуть на свежем воздухе с друзьями и семьей;
Камин в гостиной создаст атмосферу уюта и тепла в холодные вечера.
Каталог архитектурных проектов домов включает множество вариантов домов для больших семей. Z378 идеален для комфортного проживания семей с тремя детьми.

ХАРАКТЕРИСТИКИ

Прихожая: 5,0 m²
Спальня: 10,4 m²
Спальня: 11,3 m²
Спальня: 11,1 m²
Ванная комната: 9,1 m²
Ванная комната: 2,5 m²
Гардеробная: 4,0 m²
Спальня: 14,9 m²
Холл: 9,9 m²
Гараж: 36,5 m²
Котельная: 10,3 m²
Ванная комната: 3,5 m²
Кухня: 12,1 m²
Гостиная+ столовая: 39,2 m²
Сан. узел: 1,9 m²
Холл: 6,6 m²
Терраса: 0,0 m² / 28,7 m²
Терраса: 0,0 m² / 4,2 m²

№23 - Z427, 102 кв.м - компактный одноэтажный дом на фасаде с камнем и плитами.

/ 10
Получить консультацию
Мы вам перезвоним!
Укажите, пожалуйста, номер телефона. Мы перезвоним Вам в ближайшее время!

ПЛОЩАДЬ И ГАБАРИТЫ

площадь дома/общая площадь: 101,6 / 107,8 m²
площадь застройки: 174,9 m²
строительный объем: 810 m³
высота дома: 6 m
угол наклона кровли: 25°
площадь кровли: 202,55 m²

ТЕХНОЛОГИЯ СТРОИТЕЛЬСТВА

тип фундамента: ленточный сборно-монолитный
Кровля: цементно-песчаная черепица/металлочерепица/керамическая черепица
Технология: каменный
Тип перекрытия: монолитное

ОПИСАНИЕ

Z427 представляет собой компактный одноэтажный дом на фасаде с камнем и плитами.

Достоинства проекта Z427:
В таком доме могут проживать семьи с одним ребенком или люди, чьи дети выросли и живут отдельно.
Для гостей предусмотрен отдельный небольшой санузел.
Фасады отделаны черным фасадным камнем, плитами и белой штукатуркой. Такое сочетание цветов и материалов делают небольшой домик современным и элегантным.
Дневная часть дома имеет открытый интерьер. Отсюда можно выйти на уютную террасу. За счет больших окон в помещении светло и уютно.
В ночной части дома спроектировано 2 спальни и ванная комната.
Проект за счет стильного внешнего вида пригоден для строительства в любом ландшафте.
Проект Z427 предназначен для тех, кто ищет небольшой, но уютный и функциональный дом для своей семьи. Проект отличается эргономичностью и функциональностью интерьера. Несмотря на небольшую площадь дома, домочадцы могут наслаждаться домашностью, уютом и комфортом.

ХАРАКТЕРИСТИКИ

Котельная: 5,8 m²
Гараж: 19,9 m²
Гостиная: 26,7 m²
Кухня: 7,3 m²
Прихожая: 3,3 m²
Сан. узел: 2,0 m²
Холл: 7,4 m²
Спальня: 11,0 m²
Терраса: 0,0 m² / 6,2 m²

№24 - Z40, 141 кв.м - выгодный и простой в строительстве дом с эркером в дневной зоне.

/ 15
Получить консультацию
Мы вам перезвоним!
Укажите, пожалуйста, номер телефона. Мы перезвоним Вам в ближайшее время!

ПЛОЩАДЬ И ГАБАРИТЫ

площадь дома/общая площадь: 140,6 m²
площадь застройки: 89,3 m²
строительный объем: 328 m³
высота дома: 7,52 m
угол наклона кровли: 40°
площадь кровли: 141,74 m²

ТЕХНОЛОГИЯ СТРОИТЕЛЬСТВА

тип фундамента: ленточный сборно-монолитный
Кровля: цементно-песчаная черепица/металлочерепица/керамическая черепица
Технология: каменный
Тип перекрытия: монолитное

ОПИСАНИЕ

Проект Z40 представляет собой небольшой, простой и в то же время стильный дом с эркером и углубленным входом. Характерную индивидуальность дому придают оформление окон из дерева и отделочный камень на фасадах.

Преимущества проекта Z40:

Простая форма и двускатная кровля дома способствуют снижению затрат на строительство и эксплуатационные расходы.
Небольшая площадь несущих стен дают возможность вносить изменения в планировку. Можно отказаться от кабинета в пользу увеличения площади гостиной, изменить конфигурацию технических помещений, сделать кухню закрытой.
Открытая планировка кухни зрительно увеличивает пространство дневной зоны.
Расположение камина в центре гостиной поможет сократить затраты на отопление в зимнее время года.
Частично крытая терраса поможет приготовить барбекю в любую погоду.
Эркер в гостиной способствует лучшему естественному освещению комнаты, а также выделяет в гостиной отдельную подзону для отдыха.
Дополнительная комната на первом этаже делает его более практичным и уютным. Это важное дополнение планировки для семей с маленькими детьми и пожилых людей.
Санузлы расположенные один над другим значительно упрощают установку водопровода и канализации в доме.

ХАРАКТЕРИСТИКИ

Прихожая: 4,0 m²
Кухня: 9,2 m²
Гостиная: 30,2 m²
Холл: 7,9 m²
Кабинет: 11,1 m²
Котельная: 5,3 m²
Сан. узел: 3,9 m²

№25 - Z185, 109 кв.м - традиционный одноэтажный дом с крытой террасой и оранжереей.

/ 7
Получить консультацию
Мы вам перезвоним!
Укажите, пожалуйста, номер телефона. Мы перезвоним Вам в ближайшее время!

ПЛОЩАДЬ И ГАБАРИТЫ

площадь дома/общая площадь: 109,1 / 128,0 m²
площадь застройки: 190,0 m²
строительный объем: 975 m³
высота дома: 6,92 m
угол наклона кровли: 30°
площадь кровли: 243,2 m²

ТЕХНОЛОГИЯ СТРОИТЕЛЬСТВА

тип фундамента: ленточный сборно-монолитный
Кровля: цементно-песчаная черепица/металлочерепица/керамическая черепица
Технология: каменный
Тип перекрытия: монолитное

ОПИСАНИЕ

Традиционный одноэтажный дом Z185 с крытой террасой и оранжереей имеет аккуратные, простые и красивые очертания, удобный и функциональный интерьер.

Преимущества проекта Z185:

Одноэтажный дом предложит преимущества одноуровневых конструкций: быстрый и удобный доступ к любому помещению, отсутствие необходимости пользоваться лестницей соединяющей два этажа, что немаловажно для семей с маленькими детьми и пожилых людей.
Отсутствие несущих стен в ночной зоне позволит менять конфигурацию и площадь комнат.
Сложная форма дневной зоны создает отдельные подзоны для кухни со столовой и гостиной.
Четкое разделение ночной и дневной зоны скроет от любопытных взглядов посетителей частную жизнь дома.
Закрытая кухня позволит отделить хозяйственный быт от зоны отдыха.
Дополнительные выходы на террасу в спальнях делают эти комнаты более комфортными, к тому же окна-двери способствуют лучшей освещенности комнат.
Две крытые террасы станут прекрасным местом для летнего отдыха рядом с домом.
Техническое помещение, расположенное рядом с прихожей, удобно для хранения садового инвентаря и других инструментов.
Кухонная кладовая незаменима для быстрого и удобного доступа к запасам и кухонной утвари.

ХАРАКТЕРИСТИКИ

Спальня: 13,3 m²
Гостиная: 33,1 m²
Кухня: 15,7 m²
Сан. узел: 1,7 m²
Гардеробная: 3,6 m²
Прихожая: 3,7 m²
Холл: 11,2 m²
Ванная комната: 5,2 m²
Кладовая: 2,7 m²
Спальня: 10,5 m²
Терраса: 0,0 m² / 12,0 m²
Терраса: 0,0 m² / 6,8 m²
Зимний сад: 8,0 m²

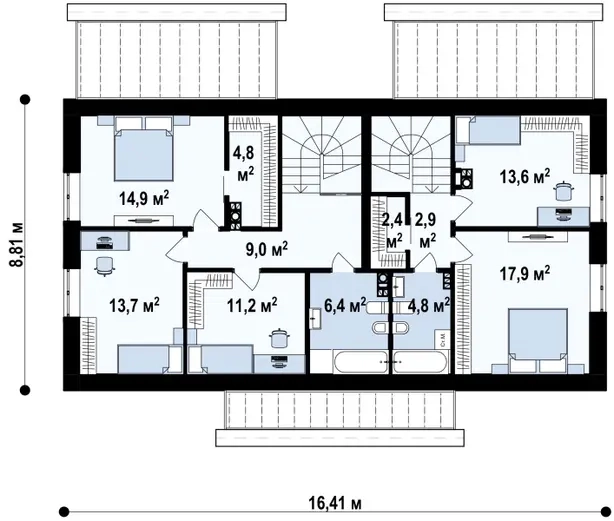
№26 - Z153, 189 кв.м - проект просторного одноэтажного дома с 4 спальнями.

/ 8
Получить консультацию
Мы вам перезвоним!
Укажите, пожалуйста, номер телефона. Мы перезвоним Вам в ближайшее время!

ПЛОЩАДЬ И ГАБАРИТЫ

площадь дома/общая площадь: 189,2 / 195,2 m²
площадь застройки: 295,2 m²
строительный объем: 1 200 m³
высота дома: 6,93 m
угол наклона кровли: 25°
площадь кровли: 347,4 m²

ТЕХНОЛОГИЯ СТРОИТЕЛЬСТВА

тип фундамента: ленточный сборно-монолитный
Кровля: цементно-песчаная черепица/металлочерепица/керамическая черепица
Технология: каменный
Тип перекрытия: монолитное

ОПИСАНИЕ

Z153 - проект просторного одноэтажного дома с 4 спальнями.

Преимущества проекта Z153:

Интерьер грамотно разработан и подразумевает четкое разделение пространства на зоны по их функциональному назначению.
Вход в дом предусмотрен посередине строения. Слева от прихожей расположена часть дома с приватной зоной, справа – дневная зона, гараж и хозяйственно-бытовые помещения.
В преддверии дневной зоны предусмотрен небольшой санузел, который могут посещать гости дома, не нарушая границ приватной зоны.
Одноуровневая планировка придется по вкусу ценителям комфорта, практичности и безопасности интерьера.
Приватная зона скрыта за дверями. Здесь предусмотрено 4 комфортабельных спальни и общая ванная комната. В главной спальне имеется индивидуальный санузел с душем.
Дневная зона характеризуется открытым интерьером, большими зонами остекления со стороны сада, наличием выхода на террасу.
Дом, возведённый по проекту Z153, за счет классических очертаний привлекает внимание сторонников традиционного стиля.

ХАРАКТЕРИСТИКИ

Сан. узел: 3,0 m²
Ванная комната: 10,4 m² 
Спальня: 14,0 m²
Спальня: 14,2 m²
Спальня: 14,6 m²
Спальня: 12,4 m²
Сан. узел: 2,5 m²
Кладовая: 4,0 m²
Гостиная: 45,7 m²
Прихожая: 6,0 m²
Холл: 10,8 m²
Холл: 3,1 m²
Гараж: 26,8 m²
Котельная: 9,8 m²
Кухня: 11,9 m²
Терраса: 0,0 m² / 6,0 m²

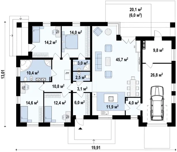
№27 - Z262, 65 кв.м - простой и недорогой в строительстве одноэтажный дом небольшой площади.

/ 8
Получить консультацию
Мы вам перезвоним!
Укажите, пожалуйста, номер телефона. Мы перезвоним Вам в ближайшее время!

ПЛОЩАДЬ И ГАБАРИТЫ

площадь дома/общая площадь: 189,2 / 195,2 m²
площадь застройки: 295,2 m²
строительный объем: 1 200 m³
высота дома: 6,93 m
угол наклона кровли: 25°
площадь кровли: 347,4 m²

ТЕХНОЛОГИЯ СТРОИТЕЛЬСТВА

тип фундамента: ленточный сборно-монолитный
Кровля: цементно-песчаная черепица/металлочерепица/керамическая черепица
Технология: каменный
Тип перекрытия: монолитное

ОПИСАНИЕ

Z153 - проект просторного одноэтажного дома с 4 спальнями.

Преимущества проекта Z153:

Интерьер грамотно разработан и подразумевает четкое разделение пространства на зоны по их функциональному назначению.
Вход в дом предусмотрен посередине строения. Слева от прихожей расположена часть дома с приватной зоной, справа – дневная зона, гараж и хозяйственно-бытовые помещения.
В преддверии дневной зоны предусмотрен небольшой санузел, который могут посещать гости дома, не нарушая границ приватной зоны.
Одноуровневая планировка придется по вкусу ценителям комфорта, практичности и безопасности интерьера.
Приватная зона скрыта за дверями. Здесь предусмотрено 4 комфортабельных спальни и общая ванная комната. В главной спальне имеется индивидуальный санузел с душем.
Дневная зона характеризуется открытым интерьером, большими зонами остекления со стороны сада, наличием выхода на террасу.
Дом, возведённый по проекту Z153, за счет классических очертаний привлекает внимание сторонников традиционного стиля.

ХАРАКТЕРИСТИКИ

Сан. узел: 3,0 m²
Ванная комната: 10,4 m² 
Спальня: 14,0 m²
Спальня: 14,2 m²
Спальня: 14,6 m²
Спальня: 12,4 m²
Сан. узел: 2,5 m²
Кладовая: 4,0 m²
Гостиная: 45,7 m²
Прихожая: 6,0 m²
Холл: 10,8 m²
Холл: 3,1 m²
Гараж: 26,8 m²
Котельная: 9,8 m²
Кухня: 11,9 m²
Терраса: 0,0 m² / 6,0 m²

№28 - Z140, 125 кв.м - одноэтажный дом с возможностью обустройства чердачного помещения, оптимальный для южного въезда на участок.

/ 6
Получить консультацию
Мы вам перезвоним!
Укажите, пожалуйста, номер телефона. Мы перезвоним Вам в ближайшее время!

ПЛОЩАДЬ И ГАБАРИТЫ

площадь дома/общая площадь: 125,1 / 130,8 m²
площадь застройки: 191,7 m²
строительный объем: 900 m³
высота дома: 7,03 m
угол наклона кровли: 35°
площадь кровли: 245,32 m²

ТЕХНОЛОГИЯ СТРОИТЕЛЬСТВА

тип фундамента: ленточный сборно-монолитный
Кровля: цементно-песчаная черепица/металлочерепица/керамическая черепица
Технология: каменный
Тип перекрытия: монолитное

ОПИСАНИЕ

Проект Z140 представляет собой одноэтажный дом с возможностью обустройства чердачного помещения, оптимальный для южного въезда на участок.

Преимущества проекта Z140:

Одноэтажная конструкция понравится ценителям комфорта и практичности одноуровневых планировок.
Расположение гостиной со стороны входа дает возможность разместить дом на участке с южным заездом.
Полуоткрытая кухня необычной формы зрительно почти не уменьшает площадь дневной зоны и при этом скрывает хозяйственный быт от зоны отдыха.
Размещение кухни со стороны сада упрощает организацию обеда или пикника в саду.
Расположение выхода на террасу в столовой создает дополнительный комфорт для приема пиши на свежем воздухе.
Открытая форма террасы способствует лучшему естественному освещению дневной зоны.
Отсутствие окон в боковых стенах дома позволяют разместить дом на более узком участке.
Большие площади остекления гарантируют хорошее естественное освещение гостиной в течение всего дня.
Две ванные комнаты, размещение прачечной в одной из них делают ежедневный быт более комфортным.
Кладовая расположенная рядом с кухней предоставит быстрый доступ к запасам и хозяйственной утвари.
Возможность строительства жилой мансарды на чердаке позволит увеличить полезную площадь дома более чем на 40 м2.

ХАРАКТЕРИСТИКИ

Прихожая: 3,3 m²
Кладовая: 3,0 m²
Кухня: 12,5 m²
Гостиная: 20,2 m²
Сан. узел: 3,0 m²
Котельная: 5,5 m²
Спальня: 14,1 m²
Спальня: 16,0 m²
Спальня: 13,6 m²
Ванная комната: 6,3 m²
Холл: 11,4 m²
Терраса: 0,0 m² / 5,7 m²
Столовая: 16,3 m²

№29 - Z460, 129. кв.м - проект дома с современным дизайном и одноуровневым функциональным интерьером.

/ 7
Получить консультацию
Мы вам перезвоним!
Укажите, пожалуйста, номер телефона. Мы перезвоним Вам в ближайшее время!

ПЛОЩАДЬ И ГАБАРИТЫ

площадь дома/общая площадь: 128,8 / 138,7 m²
площадь застройки: 211,0 m²
строительный объем: 830 m³
высота дома: 7,11 m
угол наклона кровли: 25°
площадь кровли: 245 m²

ТЕХНОЛОГИЯ СТРОИТЕЛЬСТВА

тип фундамента: ленточный сборно-монолитный
Кровля: цементно-песчаная черепица/металлочерепица/керамическая черепица
Технология: каменный
Тип перекрытия: монолитное

ОПИСАНИЕ

Z460 представляет собой проект дома с современным дизайном и одноуровневым функциональным интерьером.

Преимущества проекта Z460:
Рядом с уютной просторной кухней открытого типа размещена вместительная кладовая для хранения консервации и продуктовых запасов.
Планировка предусматривает четкое разделение приватной зоны и общей дневной. При желании перед входом в ночную зону можно установить дверь.
Дом удобен для жизни в нем большой семьи, поскольку запроектировано 4 просторных спальни. В одной из комнат есть отдельный гардероб и выход во двор.
В прихожей может быть установлен большой встроенный шкаф для одежды и обуви членов семьи.
Проект Z460 – хорошее решение для тех, кто ценит традиции, но при этом хочет идти в ногу со временем. Традиционные формы строения и кровли в сочетании с красивым экстерьером в современном стиле придают строению элегантности и привлекательности.

ХАРАКТЕРИСТИКИ

Прихожая: 9,6 m²
Спальня: 12,7 m²
Ванная комната: 5,3 m²
Спальня: 15,6 m²
Холл: 13,0 m²
Сан. узел: 2,5 m²
Котельная: 8,0 m²
Гардеробная: 3,8 m²
Спальня: 15,0 m²
Гостиная+ столовая: 31,6 m²
Кухня: 9,0 m²
Кладовая: 2,7 m²
Терраса: 0,0 m² / 9,9 m²

№30 - Z390, 151 кв.м - проект одноэтажного дома Z390 с гаражом на 1 машину и красивым белым фасадом

/ 7
Получить консультацию
Мы вам перезвоним!
Укажите, пожалуйста, номер телефона. Мы перезвоним Вам в ближайшее время!

ПЛОЩАДЬ И ГАБАРИТЫ

площадь дома/общая площадь: 128,8 / 138,7 m²
площадь застройки: 211,0 m²
строительный объем: 830 m³
высота дома: 7,11 m
угол наклона кровли: 25°
площадь кровли: 245 m²

ТЕХНОЛОГИЯ СТРОИТЕЛЬСТВА

тип фундамента: ленточный сборно-монолитный
Кровля: цементно-песчаная черепица/металлочерепица/керамическая черепица
Технология: каменный
Тип перекрытия: монолитное

ОПИСАНИЕ

Z460 представляет собой проект дома с современным дизайном и одноуровневым функциональным интерьером.

Преимущества проекта Z460:
Рядом с уютной просторной кухней открытого типа размещена вместительная кладовая для хранения консервации и продуктовых запасов.
Планировка предусматривает четкое разделение приватной зоны и общей дневной. При желании перед входом в ночную зону можно установить дверь.
Дом удобен для жизни в нем большой семьи, поскольку запроектировано 4 просторных спальни. В одной из комнат есть отдельный гардероб и выход во двор.
В прихожей может быть установлен большой встроенный шкаф для одежды и обуви членов семьи.
Проект Z460 – хорошее решение для тех, кто ценит традиции, но при этом хочет идти в ногу со временем. Традиционные формы строения и кровли в сочетании с красивым экстерьером в современном стиле придают строению элегантности и привлекательности.

ХАРАКТЕРИСТИКИ

Прихожая: 9,6 m²
Спальня: 12,7 m²
Ванная комната: 5,3 m²
Спальня: 15,6 m²
Холл: 13,0 m²
Сан. узел: 2,5 m²
Котельная: 8,0 m²
Гардеробная: 3,8 m²
Спальня: 15,0 m²
Гостиная+ столовая: 31,6 m²
Кухня: 9,0 m²
Кладовая: 2,7 m²
Терраса: 0,0 m² / 9,9 m²

№31 - Z395, 172 кв.м - дом в необычном современном стиле для большой семьи

/ 7
Получить консультацию
Мы вам перезвоним!
Укажите, пожалуйста, номер телефона. Мы перезвоним Вам в ближайшее время!

ПЛОЩАДЬ И ГАБАРИТЫ

площадь дома/общая площадь: 171,7 / 180,1 m²
площадь застройки: 267,8 m²
строительный объем: 990 m³
высота дома: 6,29 m
угол наклона кровли: 25°
площадь кровли: 206,94 m²

ТЕХНОЛОГИЯ СТРОИТЕЛЬСТВА

тип фундамента: ленточный сборно-монолитный
Кровля: цементно-песчаная черепица/металлочерепица/керамическая черепица
Технология: каменный
Тип перекрытия: монолитное

ОПИСАНИЕ

Z395 представляет собой дом в необычном современном стиле для большой семьи с просторным гаражом.

Преимущества проекта Z395:

Современный дизайн и традиционная форма строения делают дом подходящим для застройщиков разного возраста.
Оригинальный экстерьер, сочетающий деревянную обшивку темного коричневого цвета и штукатурку цвета графит, привлекают взоры прохожих, и свидетельствует о прекрасном вкусе хозяев.
Справа от входа размещена просторная гардеробная, что позволяет сохранять порядок в остальной части дома.
Пространство дома четко разделено на зоны: дневную, для отдыха и технические помещения.
Дневная зона светла и просторна, поскольку подразумевает совмещение помещений столовой, гостиной и кухни в единое пространство.
Проект Z395 и подобные ему готовые проекты коттеджей от компании Z500 идеальны для застройщиков, которые приобрели узкий участок.

ХАРАКТЕРИСТИКИ

Прихожая: 4,2 m²
Гараж: 37,4 m²
Котельная: 5,3 m²
Гостиная: 32,5 m²
Кухня: 9,7 m²
Спальня: 17,8 m²
Спальня: 11,2 m²
Спальня: 12,2 m² 
Спальня: 13,8 m²
Сан. узел: 1,9 m²
Ванная комната: 5,9 m²
Ванная комната: 4,8 m²
Холл: 12,3 m²
Гардеробная: 2,7 m²
Терраса: 0,0 m² / 1,3 m²
Терраса: 0,0 m² / 1,3 m²
Терраса: 0,0 m² / 1,5 m²
Терраса: 0,0 m² / 4,3 m²

№32 - Z488, 109 кв.м - одноэтажный дом на 3 комнаты, гостиная со столовой и гараж на одну машину

/ 7
Получить консультацию
Мы вам перезвоним!
Укажите, пожалуйста, номер телефона. Мы перезвоним Вам в ближайшее время!

ПЛОЩАДЬ И ГАБАРИТЫ

площадь дома/общая площадь: 108,7 m²
площадь застройки: 140,3 m²
угол наклона кровли: 30°
площадь кровли: m²

ТЕХНОЛОГИЯ СТРОИТЕЛЬСТВА

тип фундамента: ленточный сборно-монолитный
Кровля: цементно-песчаная черепица/металлочерепица/керамическая черепица
Технология: каменный
Тип перекрытия: монолитное

ОПИСАНИЕ

Z488 представляет собой одноэтажный дом на 3 комнаты, с просторной гостиной со столовой и гаражом на одну машину.

Достоинства проекта Z488:
Отсутствие сложных архитектурных решений позволяет строить по проекту проще и быстрее.

Проект приглянется как ценителям современных домов, так и домов в классическом стиле.

Планировка интерьера удобна и функциональна. В доме с комфортом может проживать семья с 2 детьми.

Для гостей предусмотрен дополнительный санузел.

Дневная зона, спроектированная в левой части дома, имеет открытую планировку. За счет этого гостиная кажется еще светлее и просторнее.

Возле кухни имеется вместительная кладовая.

Проект Z488 предназначен для тех, кто ищет светлый и уютный дом для своей семьи. Простая форма строения и неброский дизайн экстерьера делают проект актуальным для любой местности.

ХАРАКТЕРИСТИКИ

Гараж: 16,9 m²
Котельная: 5,0 m²
Спальня: 14,4 m²
Спальня: 10,9 m²
Спальня: 10,9 m²
Гостиная + кухня: 21,6 m²
Кладовая: 2,3 m²
Сан. узел: 2,6 m²
Прихожая: 3,6 m²
Холл: 7,1 m²
Ванная комната: 7,3 m²
Кухня: 6,1 m²

№33 - Z279, 181 кв.м - одноэтажный дом с каменной облицовкой фасадов

/ 7
Получить консультацию
Мы вам перезвоним!
Укажите, пожалуйста, номер телефона. Мы перезвоним Вам в ближайшее время!

ПЛОЩАДЬ И ГАБАРИТЫ

площадь дома/общая площадь: 181,4 / 211,1 m²
площадь застройки: 346,0 m²
строительный объем: 1 420 m³
высота дома: 6,23 m
угол наклона кровли: 25°
площадь кровли: 408,1 m²

ТЕХНОЛОГИЯ СТРОИТЕЛЬСТВА

тип фундамента: ленточный сборно-монолитный
Кровля: цементно-песчаная черепица/металлочерепица/керамическая черепица
Технология: каменный
Тип перекрытия: монолитное

ОПИСАНИЕ

Z279 представляет собой одноэтажный дом с каменной облицовкой фасадов и пристроенным гаражом на один автомобиль. Проект подходит для реализации на узких участках.

Преимущества проекта Z279:

Сложная форма строения и кровли в сочетании с оригинальным экстерьером делают дом современным, стильным, привлекающим взоры.
Нетрадиционная планировка подразумевает расположение зоны сна во фронтальной части здания.
Дневная часть спроектирована со стороны сада. Из гостиной есть выход на просторную комфортную террасу, где можно проводить время в семейном кругу или отдыхать в шумной компании друзей.
Гостиная светлая за счет больших зон остекления и просторная за счет объединения со столовой зоной и кухней.
Камин спроектирован в центре дневной зоны, что создает теплую атмосферу в ней.
Комнаты зоны сна комфортны и просторны.
Проект Z279 идеален для застройщиков, которым важна функциональность и практичность.

ХАРАКТЕРИСТИКИ

Прихожая: 4,7 m²
Гараж: 23,9 m²
Холл: 10,9 m²
Кладовая: 4,1 m²
Кухня: 12,5 m²
Гостиная+ столовая: 44,9 m²
Котельная: 7,7 m²
Сан. узел: 2,0 m²
Гардеробная: 5,0 m²
Спальня: 12,4 m²
Ванная комната: 5,6 m²
Прачечная: 3,4 m²
Спальня: 13,5 m²
Гардеробная: 4,1 m²
Ванная комната: 8,2 m²
Спальня: 12,6 m²
Гардеробная: 5,9 m²
Терраса: 0,0 m² / 29,7 m²

№34 - Z425, 186 кв.м - современный одноэтажный дом с многоскатной крышей и гаражом на две машины.

/ 9
Получить консультацию
Мы вам перезвоним!
Укажите, пожалуйста, номер телефона. Мы перезвоним Вам в ближайшее время!

ПЛОЩАДЬ И ГАБАРИТЫ

площадь дома/общая площадь: 186,3 / 205,9 m²
площадь застройки: 371,9 m²
строительный объем: 1 100 m³
высота дома: 5,3 m
угол наклона кровли: 25°
площадь кровли: 358,1 m²

ТЕХНОЛОГИЯ СТРОИТЕЛЬСТВА

тип фундамента: ленточный сборно-монолитный
Кровля: цементно-песчаная черепица/металлочерепица/керамическая черепица
Технология: каменный
Тип перекрытия: монолитное

ОПИСАНИЕ

Z425 представляет собой современный одноэтажный дом с многоскатной крышей и гаражом на две машины.

Достоинства проекта Z425:
Крытая терраса станет уютным и удобным местом для проведения досуга с друзьями и семьей в жаркие дни. Здесь можно уединиться для чтения любимых книг и в прохладные осенние дни, укутавшись мягким теплым пледом.
Из прихожей есть переходы в техническое помещение и в гараж.
Над входной группой имеется навес, который защитит от солнца и осадков.
В гостиной предусмотрено остекление с трех сторон. Это способствует прекрасному освещению интерьера дневной зоны и визуально расширяет пространство.
Благодаря наличию туалета для гостей им не нужно покидать дневную зону и идти в приватную часть дома.
Ночная зона – это просторная хозяйская спальня с отдельной ванной и гардеробом, и две спальни для детей с общей ванной комнатой.
Проект Z425 – это удобный, функциональный дом для семьи из 4 человек, ценящей комфорт и современный дизайн.

ХАРАКТЕРИСТИКИ

Котельная: 7,2 m²
Гостиная: 28,6 m²
Кладовая: 1,8 m²
Холл: 9,0 m²
Кладовая: 2,7 m²
Терраса: 0,0 m² / 19,6 m²

№35 - Z349, 127 кв.м - cтильный одноэтажный дом с двускатной кровлей и грамотной планировкой

/ 7
Получить консультацию
Мы вам перезвоним!
Укажите, пожалуйста, номер телефона. Мы перезвоним Вам в ближайшее время!

ПЛОЩАДЬ И ГАБАРИТЫ

площадь дома/общая площадь: 127,4 / 140,9 m²
площадь застройки: 234,3 m²
строительный объем: 980 m³
высота дома: 6,41 m
угол наклона кровли: 25°
площадь кровли: 264,46 m²

ТЕХНОЛОГИЯ СТРОИТЕЛЬСТВА

тип фундамента: ленточный сборно-монолитный
Кровля: цементно-песчаная черепица/металлочерепица/керамическая черепица
Технология: каменный
Тип перекрытия: монолитное

ОПИСАНИЕ

Z349 представляет собой стильный одноэтажный дом с двускатной кровлей и грамотной планировкой. Проект создавался с мыслью о клиентах, которые хотят построить не слишком дорогой классический дом. Такой дом гармонично вольется в любую местность.

Преимущества проекта Z349:

Экстерьер оформлен в спокойных нейтральных тонах, наиболее универсальных и модных в последний период времени. Преобладают белый и графит. Для отделки используются фасадные плиты, древесина, штукатурка.
Интерьер грамотно и четко разделен на две зоны. Дневная часть, находящаяся в левой части дома, светлая, просторная и визуально увеличена за счет объединения столовой и гостиной.
Зона сна представлена 4 просторными комнатами.
Те кто не является сторонником классических домов, могут выбирать коттеджи в стиле хай тек. Проекты Z500 качественны, практичны, надежны, оригинальны и имеют функциональную планировку.

ХАРАКТЕРИСТИКИ

Кухня: 11,6 m²
Кладовая: 3,3 m²
Котельная: 5,4 m²
Прихожая: 3,3 m²
Спальня: 11,5 m²
Спальня: 11,3 m²
Ванная комната: 5,6 m²
Спальня: 11,8 m²
Спальня: 11,8 m²
Гардеробная: 4,3 m²
Ванная комната: 3,1 m²
Холл: 12,1 m²
Гостиная+ столовая: 32,3 m²
Терраса: 0,0 m² / 13,5 m²

№36 - Z351, 205 кв.м - стильный мансардный дом с двускатной кровлей

/ 15
Получить консультацию
Мы вам перезвоним!
Укажите, пожалуйста, номер телефона. Мы перезвоним Вам в ближайшее время!

ПЛОЩАДЬ И ГАБАРИТЫ

площадь дома/общая площадь: 205,2 / 225,2 m²
площадь застройки: 271,4 m²
строительный объем: 1 010 m³
высота дома: 8,3 m
угол наклона кровли: 40°
площадь кровли: 237,44 m²

ТЕХНОЛОГИЯ СТРОИТЕЛЬСТВА

тип фундамента: ленточный сборно-монолитный
Кровля: цементно-песчаная черепица/металлочерепица/керамическая черепица
Технология: каменный
Тип перекрытия: монолитное

ОПИСАНИЕ

Проект Z351 представляет собой стильный мансардный дом с двускатной кровлей.

Преимущества проекта Z351:

Дом характеризуется большой площадью и грамотной планировкой, удобной для проживания двух семей.
Черепичная крыша графитового цвета гармонично сочетается с облицовкой кирпичом. Дом смотрится стильно и респектабельно.
Большая часть дома характеризуется наличием трех спален на мансардном этаже. В главной спальне предусмотрена вместительная кладовая. Открытая планировка дневной зоны на первом этаже и панорамные окна способствуют хорошему уровню освещения и визуальному расширению пространства.
Во второй части дома дневная зона также с открытым интерьером и большими окнами. На верхнем этаже приватная зона с двумя просторными спальнями, общей ванной и отдельным помещение гардеробной.
Проект Z351 разработан специально для больших и дружных семей, где каждый имеет личное пространство и при этом все находятся рядом.

ХАРАКТЕРИСТИКИ

Прихожая: 3,5 m²
Кухня + столовая: 13,2 m²
Гостиная: 20,1 m²
Сан. узел: 1,8 m²
Холл + лестница: 11,1 m²
Ванная комната: 6,4 m²
Кухня + столовая: 12,3 m²
Гостиная: 18,4 m²
Котельная: 5,4 m²
Прихожая: 3,6 m²
Холл + лестница: 8,1 m²
Терраса: 0,0 m² / 10,0 m²
Терраса: 0,0 m² / 10,0 m²

№37 - Z366, 91 кв.м - одноэтажный дом в традиционном стиле с просторной гостиной

/ 15
Получить консультацию
Мы вам перезвоним!
Укажите, пожалуйста, номер телефона. Мы перезвоним Вам в ближайшее время!

ПЛОЩАДЬ И ГАБАРИТЫ

площадь дома/общая площадь: 90,5 / 105,0 m²
площадь застройки: 186,0 m²
строительный объем: 650 m³
высота дома: 5,7 m
угол наклона кровли: 25°
площадь кровли: 210,93 m²

ТЕХНОЛОГИЯ СТРОИТЕЛЬСТВА

тип фундамента: ленточный сборно-монолитный
Кровля: цементно-песчаная черепица/металлочерепица/керамическая черепица
Технология: каменный
Тип перекрытия: монолитное

ОПИСАНИЕ

Z366 - одноэтажный дом в традиционном стиле с просторной гостиной.

Преимущества проекта Z153:

Удобный доступ ко всем помещениям предоставляет их расположение на одном уровне.
Особенностью проекта является расположение приватной зоны во фронтальной части строения. За счет архитектурных приемов и больших окон от пола интерьер в помещения проникает достаточное количество солнечного тепла и света.
Дневная зона расположена со стороны сада и характеризуется открытым интерьером. Наличие камина в гостиной обеспечивает уютную теплую домашнюю атмосферу.
Из гостиной есть выход на просторную террасу крытого типа, на которой удобно организовывать семейный отдых и прием гостей в теплое время года.
Проект Zx185 – хороший вариант просторного функционального дома для семьи 2+2. Традиционная форма в сочетании с современным оформлением фасадов делают реализацию проекта актуальной практически в любой местности.

ХАРАКТЕРИСТИКИ

Ванная комната: 7,6 m²
Спальня: 10,8 m²
Спальня: 11,5 m²
Спальня: 11,1 m²
Котельная: 6,2 m²
Гостиная: 15,8 m²
Прихожая: 3,5 m²
Холл: 9,0 m²
Терраса: 0,0 m² / 14,5 m²
Кухня + столовая: 15,0 m²
Данные проекты взяты с сайта z500proekty.ru, они используется только для ознакомления.

Контакты

Мы находимся в г. Новосибирске, ул. Мичурина 20
офис 213

График работы:
Пн-Пт с 9:00 до 18:00
Сб: 10:00 до 18:00

тел.: +7 (800) 101 20 04, +7 (913) 771 24 98
e-mail: 7712498stroy@mail.ru 
НАШИ КОНТАКТЫ
Внимание! Данный сайт носит информационный характер и ни при каких условиях не является публичной офертой, которая определяется положениями Статьи 437. Гражданского кодекса РФ. Для получения подробной информации остоимости указанных услуг, пожалуйста, обращайтесь к нашим менеджерам.
Данный сайт был разработан сотрудниками компании «Unicode-Profi»
Сейчас работаем
Не работаем
Обратный звонок
Мы вам перезвоним!
Укажите, пожалуйста, номер телефона. Мы перезвоним Вам в ближайшее время!