Посмотрите проекты современных домов, которые можно реализовать

проекты домов в современном стиле

проекты домов в современном стиле

63. Zx22, 271 кв.м - современный двухэтажный дом с гаражом и террасой, спальней на первом этаже и ванной комнатой

/ 15
Получить консультацию
Мы вам перезвоним!
Укажите, пожалуйста, номер телефона. Мы перезвоним Вам в ближайшее время!

ПЛОЩАДЬ И ГАБАРИТЫ

площадь дома/общая площадь: 270,6 / 294,4 m²
площадь застройки: 371,8 m²
строительный объем: 1 172 m³
высота дома: 7,57 m
угол наклона кровли: 6° / 3°
площадь кровли: 220,68 m²

ТЕХНОЛОГИЯ СТРОИТЕЛЬСТВА

тип фундамента: ленточный сборно-монолитный
Кровля: цементно-песчаная черепица/металлочерепица/керамическая черепица
Технология: каменный
Тип перекрытия: монолитное

ОПИСАНИЕ

Zx22 – современный двухэтажный дом с гаражом и террасой, спальней на первом этаже и ванной комнатой.

Преимущества проекта Zx22:

Стильный внешний вид дома обусловлен наличием панорамных окон, а сложная архитектура делает дом респектабельным и новомодным.
Планировка подразумевает четкое разделение пространства на функциональные зоны. Первый этаж отведен под дневную зону, хозяйственные помещения и гараж. Имеется здесь и приватная зона с двумя комнатами, в которой удобно разместить пожилых членов семьи и родителей с малышом.
Каждая из спален второго этаже также оснащены индивидуальной ванной комнатой и гардеробом. Имеется выход на террасу, что дает возможность принимать солнечные ванны, когда удобно.
Панорамные окна в помещениях дневной и приватной зоны обеспечивают хороший уровень естественного освещения.
Проект Zx22 привлечёт внимание застройщиков, которые предпочитают простор и независимость. Также выбор данного проекта подчеркнёт статус его хозяина.

ХАРАКТЕРИСТИКИ

1-ый этаж 177,3 / 177,3 m²
Гостиная: 37,8 m²
Кухня + столовая: 20,7 m²
Кладовая: 3,5 m²
Холл: 6,7 m²
Холл: 10,3 m²
Хоз. помещение: 6,7 m²
Ванная комната: 5,6 m²
Сан. узел: 2,4 m²
Спальня: 15,5 m²
Спальня: 11,8 m²
Прихожая: 5,8 m²
Котельная: 5,5 m²
Гараж: 45,0 m²
Мансарда 93,3 / 117,1 m²
Спальня: 16,1 m²
Спальня: 17,0 m²
Спальня: 22,6 m²
Ванная комната: 5,1 m²
Ванная комната: 4,4 m²
Ванная комната: 5,9 m²
Гардеробная: 3,1 m²
Гардеробная: 3,7 m²
Гардеробная: 2,5 m²
Холл + лестница: 12,9 m²
Балкон: 0,0 m² / 1,3 m²
Балкон: 0,0 m² / 1,8 m²
Балкон: 0,0 m² / 7,2 m²
Терраса на втором этаже: 0,0 m² / 13,5 m²

64. Zx46 GL2, 264 кв.м - комфортная резиденция, современный дизайн, оптимальная планировка помещений.

/ 4
Получить консультацию
Мы вам перезвоним!
Укажите, пожалуйста, номер телефона. Мы перезвоним Вам в ближайшее время!

ПЛОЩАДЬ И ГАБАРИТЫ

площадь дома/общая площадь: 263,8 / 270,6 m²
площадь застройки: 223,0 m²
строительный объем: 1 200 m³
высота дома: 6,96 m
угол наклона кровли: 2°
площадь кровли: 131,27 m²

ТЕХНОЛОГИЯ СТРОИТЕЛЬСТВА

тип фундамента: ленточный монолитный
Кровля: ПВХ мембрана
технология: каменный
Тип перекрытия: монолитное

ОПИСАНИЕ

Zx46 GL2 - комфортная резиденция, современный дизайн, оптимальная планировка помещений.

Преимущества проекта Zx46GL2:

Дом будет выгодно выделяться в любом ландшафте благодаря удачному сочетанию традиционных и современных элементов архитектуры.
Сложная форма дневной зоны акуратно выделяет отдельные подзоны не нарушая целостность всего пространства, что дает возможность разместить более уютно гостиную, столовую и кухню.
Второй этаж предусматривает три уютных спальни, в одной из которых разместился индивидуальный санузел. Общая ванная комната просторная и удобная в эксплуатации.
В большом техническом помещении, которое находится в задней части гаража могут поместиться не только инструменты, но и небольшая мастерская.
Сочетание в интерьере различных материалов и элементов декора делает внешний облик строения уникальным, респектабельным, стильным и модным.
Уютным местом для отдыха станет терраса на втором этаже к которой можно выити как через холл, так и из одной из спален. Здесь можно насладится чашечкой ароматного кофе.
Проект Zx46GL2 рассчитан на большую семью, при этом для каждого проживающего созданы все условия для комфортной жизни.

ХАРАКТЕРИСТИКИ

1-ый этаж 148,0 / 154,8 m²
Прихожая: 4,6 m²
Гардеробная: 4,7 m²
Холл + лестница: 18,3 m²
Сан. узел: 2,1 m²
Гостиная+ столовая: 31,1 m²
Кухня: 9,7 m²
Прачечная: 2,6 m²
Спальня: 13,8 m²
Гардеробная: 3,0 m²
Ванная комната: 4,2 m²
Кладовая: 5,4 m²
Котельная: 5,4 m²
Хоз. помещение: 4,0 m²
Гараж: 34,5 m²
Хоз. помещение: 4,6 m²
Терраса: 0,0 m² / 6,8 m²
2-ой этаж 115,8 / 115,8 m²
Холл: 16,5 m²
Спальня: 26,4 m²
Спальня: 21,0 m²
Спальня: 17,8 m²
Ванная комната: 6,4 m²
Гардеробная: 6,9 m²
Ванная комната: 7,5 m²
Студия: 13,3 m²

65. Z115, 118 кв.м - выгодный в строительстве и эксплуатации двухэтажный дом простой формы.

/ 9
Получить консультацию
Мы вам перезвоним!
Укажите, пожалуйста, номер телефона. Мы перезвоним Вам в ближайшее время!

ПЛОЩАДЬ И ГАБАРИТЫ

площадь дома/общая площадь: 118,3 / 145,9 m²
площадь застройки: 175,3 m²
строительный объем: 904,89 m³
высота дома: 8,53 m
угол наклона кровли: 30°
площадь кровли: 120 m²

ТЕХНОЛОГИЯ СТРОИТЕЛЬСТВА

тип фундамента: ленточный монолитный
Кровля: цементно-песчаная черепица/металлочерепица/керамическая черепица
технология: каменный
Тип перекрытия: монолитное

ОПИСАНИЕ

Z115 представляет собой выгодный в строительстве и эксплуатации двухэтажный дом простой формы. Очень лаконичное, минимальное оформление фасадов, большие окна придают традиционным формам дома современный характер.

Преимущества проекта Z115:

Простая форма дома и двускатная кровля способствуют уменьшению затрат на строительные работы и его содержание.
Простая форма дневной зоны дарит ощущение свободы открытого пространства.
Открытая кухня увеличивает зрительно дневную зону и способствует ее лучшему дневному освещению.
Открытая обширная терраса, также, способствует лучшему освещению дома в течение дня, помогает удобно и комфортно организовать пространство около дома.
Большие удлиненные окна гарантируют прекрасное естественное освещение комнат и дарят ощущение единства с природой.
Большая ванная комната удобно совмещена с прачечной.
Кладовая расположенная рядом с кухней предоставит быстрый доступ к хозяйственной утвари и запасам.
Дополнительная комната на первом этаже делает ежедневный быт комфортнее и практичнее.
Санузлы расположенные один над другим позволяют быстрее и легче провести в доме водопровод и канализацию.
Минималистичный дизайн дома привлечет внимание любителей современной архитектуры.

ХАРАКТЕРИСТИКИ

1-ый этаж 60,1 / 87,8 m²
Прихожая: 3,3 m²
Кабинет: 11,2 m²
Тех. помещение: 5,4 m²
Холл + лестница: 9,8 m²
Сан. узел: 3,5 m²
Кухня: 6,6 m²
Гостиная+ столовая: 18,6 m²
Кладовая: 1,4 m²
Терраса: 0,0 m² / 27,6 m²
2-ой этаж 58,1 / 58,1 m²
Холл: 5,4 m²
Спальня: 15,0 m²
Спальня: 11,7 m²
Спальня: 10,9 m²
Ванная комната: 10,7 m²
Кладовая: 4,4 m²

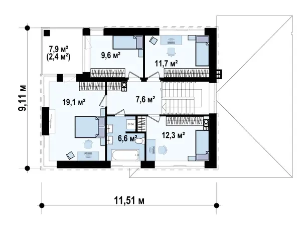
66. Zx8, 167 кв.м - двухэтажный современный дом с многоскатной низкой крышей, с гостиной с фронтальной стороны.

/ 8
Получить консультацию
Мы вам перезвоним!
Укажите, пожалуйста, номер телефона. Мы перезвоним Вам в ближайшее время!

ПЛОЩАДЬ И ГАБАРИТЫ

площадь дома/общая площадь: 166,7 / 169,1 m²
площадь застройки: 166,6 m²
строительный объем: 1 080 m³
высота дома: 8,19 m
угол наклона кровли: 20°
площадь кровли: 207,4 m²

ТЕХНОЛОГИЯ СТРОИТЕЛЬСТВА

тип фундамента: ленточный монолитный
Кровля: цементно-песчаная черепица/металлочерепица/керамическая черепица
технология: каменный
Тип перекрытия: монолитное

ОПИСАНИЕ

Проект Zx8 представляет двухэтажный современный дом с многоскатной низкой крышей, с гостиной с фронтальной стороны. Лаконичная кубическая форма стала прекрасным фоном для интересных архитектурных находок: отделка панелями высветленного дерева, элегантное оформление входа, лёгкий балкон, который поддерживают монументальные колонны — всё это наделяет проект особым шармом и в то же время позволяет построить этот компактный дом даже на небольшом участке.

Справа от входа спроектирована дневная зона. Из гостиной есть переход в столовую (каждая из комнат имеет выход на террасу) и далее в кухню, в которой предусмотрена кладовая. Из гаража через подсобное помещение есть выход в дом.

Четыре спальни (две имеют общий балкон) устроены на втором этаже.
Просторный холл и большая общая ванная с выделенным местом для сантехнического оборудования дают возможность удобно организовать быт большой семьи.
Пространство дома спроектировано максимально функционально, что позволяет каждому домочадцу чувствовать себя уютно и свободно.

ХАРАКТЕРИСТИКИ

1-ый этаж 99,8 / 99,8 m²
Прихожая: 3,5 m²
Гостиная: 26,3 m²
Кухня: 11,4 m²
Столовая: 9,9 m²
Холл + лестница: 9,2 m²
Котельная: 5,3 m²
Сан. узел: 1,5 m²
Кладовая: 3,5 m²
Кладовая: 4,5 m²
Гараж: 19,1 m²
Терраса: 5,6 m²
Мансарда 66,9 / 69,3 m²
Холл + лестница: 7,6 m²
Спальня: 9,6 m²
Спальня: 11,7 m²
Спальня: 19,1 m²
Спальня: 12,3 m²
Ванная комната: 6,6 m²
Балкон: 0,0 m² / 2,4 m²

67. Zx53, 111 кв.м - современный комфортабельный одноэтажный дом с функциональным интерьером и уютной террасой.

/ 15
Получить консультацию
Мы вам перезвоним!
Укажите, пожалуйста, номер телефона. Мы перезвоним Вам в ближайшее время!

ПЛОЩАДЬ И ГАБАРИТЫ

площадь дома/общая площадь: 110,9 / 116,0 m²
площадь застройки: 180,0 m²
строительный объем: 570 m³
высота дома: 4,35 m
угол наклона кровли: 3°
площадь кровли: 138 m²

ТЕХНОЛОГИЯ СТРОИТЕЛЬСТВА

тип фундамента: ленточный сборно-монолитный
Кровля: ПВХ мембрана
технология: каменный
Тип перекрытия: монолитное

ОПИСАНИЕ

Zx53+ представляет собой увеличенную версию проекта одноэтажного дома Zx53 с плоской кровлей и красивой террасой.

Преимущества проекта Zx53+:
В экстерьере удачно сочетаются белая штукатурка элементы обшивки из натурального дерева. Дом выглядит современно и стильно, привлекая взгляды прохожих.
В ночной зоне предусмотрено три комфортных спальни, каждая из которых имеет выход на террасу. Здесь также разместилась просторная общая ванная комната.
В дневной зоне отсутствуют перегородки между гостиной, кухней и столовой, что зрительно увеличивает пространство и делает его светлее.
Для запасливых хозяек преимуществом будет наличие кладовой возле кухни.
Наличие дополнительного санузла около дневной зоны позволяет ограничить посещение приватной зоны гостями.
Проект дома Zx53+ предназначен для семей, члены которых любят просторные и светлые помещения.

ХАРАКТЕРИСТИКИ

1-ый этаж 110,9 / 116,0 m²
Гостиная+ столовая: 29,6 m²
Кухня: 10,0 m²
Сан. узел: 3,8 m²
Холл: 9,8 m²
Прихожая: 3,4 m²
Котельная: 5,6 m²
Спальня: 14,1 m²
Ванная комната: 5,7 m²
Спальня: 14,1 m²
Спальня: 14,8 m²

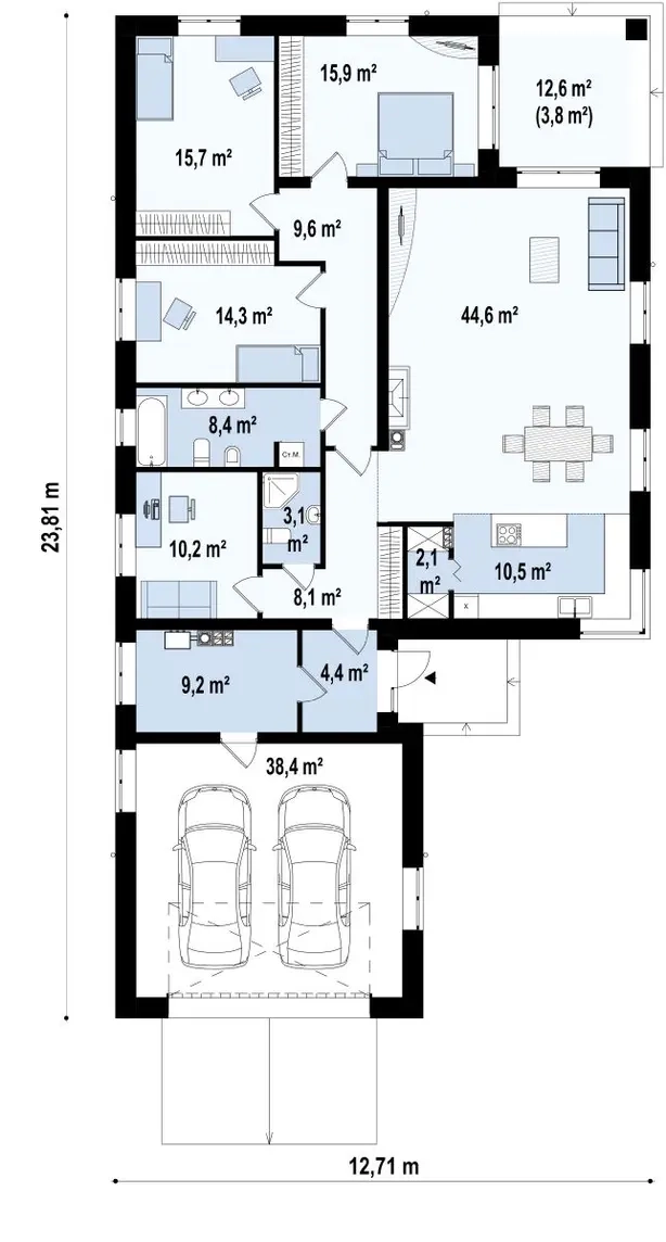
68. Z195 GF2 HB, 195 кв.м - версия Z195 с гаражом для двух автомобилей

/ 12
Получить консультацию
Мы вам перезвоним!
Укажите, пожалуйста, номер телефона. Мы перезвоним Вам в ближайшее время!

ПЛОЩАДЬ И ГАБАРИТЫ

площадь дома/общая площадь: 194,5 / 198,3 m²
площадь застройки: 261,6 m²
строительный объем: 1 532 m³
высота дома: 7,43 m
угол наклона кровли: 30°
площадь кровли: 363,05 m²

ТЕХНОЛОГИЯ СТРОИТЕЛЬСТВА

тип фундамента: ленточный сборно-монолитный
Кровля: металлочерепица/керамическая черепица
технология: каменный
Тип перекрытия: по деревянным балкам

ОПИСАНИЕ

Z195 GF2 HB представляет собой версию z195 с гаражом для двух автомобилей. Дом гармонично вливается в любой пейзаж.

Преимущества проекта Z195 GF2 HB:
Три просторные комнаты ночной зоны и общая ванная полностью отделены от дневной части дома. Такая планировка позволяет скрывать от посторонних любопытныз взоров приватную жизнь домочадцев.
Перед входом в дневную часть дома спроектирован уютный светлый и просторный кабинет. Рядом с ним имеется санузел для гостей.
Пройти в большой гараж можно через подсобное помещение из прихожей.
Открытая планировка дневной зоны и большая площадь остекления остекления обеспечивают отличное освещение в течение всего дня.
Из гостиной и двух комнат ночной зоны предусмотрены выходы на террасу со стороны сада.
Z195 GF2 HB – отличный вариант для ценителей одноуровневых просторных планировок и оригинального дизайна.

ХАРАКТЕРИСТИКИ

1-ый этаж 194,5 / 198,3 m²
Прихожая: 4,4 m²
Гараж: 38,4 m²
Кладовая: 2,1 m²
Кухня: 10,5 m²
Гостиная+ столовая: 44,6 m²
Холл: 8,1 m²
Спальня: 15,9 m²
Спальня: 15,7 m²
Спальня: 14,3 m²
Ванная комната: 8,4 m²
Сан. узел: 3,1 m²
Кабинет: 10,2 m²
Котельная: 9,2 m²
Холл: 9,6 m²
Терраса: 0,0 m² / 3,8 m²

69. Z387, 169 кв.м - одноэтажный дом - 4 спальни, гараж и 2-х скатная крыша, фасад клинкерная плитка

/ 7
Получить консультацию
Мы вам перезвоним!
Укажите, пожалуйста, номер телефона. Мы перезвоним Вам в ближайшее время!

ПЛОЩАДЬ И ГАБАРИТЫ

площадь дома/общая площадь: 169,4 / 185,2 m²
площадь застройки: 282,7 m²
строительный объем: 1 250 m³
высота дома: 6,55 m
угол наклона кровли: 25°
площадь кровли: 302,7 m²

ТЕХНОЛОГИЯ СТРОИТЕЛЬСТВА

тип фундамента: ленточный сборно-монолитный
Кровля: металлочерепица/керамическая черепица
технология: каменный
Тип перекрытия: по деревянным балкам

ОПИСАНИЕ

Z387 представляет собой одноэтажный дом с 4 спальнями, гаражом и 2-х скатной крышей.

Чем интересен проект Z387:
Простая форма кровли и строения в сочетании с современным оформлением фасадов (выбраны спокойные нейтральные тона отделочных материалов) обеспечивают привлекательность проекта застройщикам разных поколений.
Окна до самого пола одновременно представляют собой выходы на террасу.
Внутреннее пространство удобно и четко разделено на зоны.
Ночная часть дома расположена в левом крыле. Здесь спроектирована общая ванная комната и 3 больших спальни, в двух из них есть индивидуальный гардероб.
Перед входом в ночную зону расположен удобный кабинет, который оценят те, кто много работает дома. Также это помещение можно адаптировать при необходимости в гостевую комнату или дополнительную спальню.
Z387 предназначен для застройщиков, которые хотят на небольшом участке построить комфортный дом для большой семьи.

ХАРАКТЕРИСТИКИ

1-ый этаж 169,4 / 185,2 m²
Спальня: 12,7 m²
Гардеробная: 4,7 m²
Гараж: 23,4 m²
Прихожая: 5,3 m²
Кухня: 8,9 m²
Гостиная+ столовая: 36,1 m²
Ванная комната: 4,0 m²
Гардеробная: 4,2 m²
Холл: 7,2 m²
Спальня: 12,7 m²
Ванная комната: 5,6 m²
Спальня: 11,9 m²
Кладовая: 4,1 m²
Кабинет: 10,8 m²
Холл: 6,7 m²
Котельная: 11,1 m²
Терраса: 0,0 m² / 15,8 m²

70. Zx55, 180 кв.м - просторный и комфортный двухэтажный дом с большими окнами.

/ 8
Получить консультацию
Мы вам перезвоним!
Укажите, пожалуйста, номер телефона. Мы перезвоним Вам в ближайшее время!

ПЛОЩАДЬ И ГАБАРИТЫ

площадь дома/общая площадь: 180,4 / 212,9 m²
площадь застройки: 206,1 m²
строительный объем: 1 290 m³
высота дома: 8,41 m
угол наклона кровли: 20°
площадь кровли: 162,16 m²

ТЕХНОЛОГИЯ СТРОИТЕЛЬСТВА

тип фундамента: ленточный сборно-монолитный
Кровля: металлочерепица/керамическая черепица
технология: каменный
Тип перекрытия: по деревянным балкам

ОПИСАНИЕ

Проект Zx55 представляет просторный и комфортный двухэтажный дом с большими окнами. Респектабельный облик фасада подчёркнут отделкой натуральным камнем и стильным оформлением зоны террасы с помощью поперечных панелей тёмного дерева.

Ниша для хранения поленьев усиливает общее впечатление добротного и уютного дома. На первом этаже спроектирована дневная зона. Оригинальная планировка кухни позволила устроить вместительную кладовую, а также частично закрыть саму кухню от зоны гостиной, сохранив ощущение единого пространства. Слева от прихожей расположена ванная с выделенным местом для прачечной. В дальней части спроектирована спальня с собственным выходом на террасу.

Две спальни (для них предусмотрены общая ванная и гардероб) и большая спальня с отдельными ванной и гардеробом устроены на втором этаже. Великолепная открытая терраса второго уровня придаёт этой зоне особое очарование.

ХАРАКТЕРИСТИКИ

1-ый этаж 98,5 / 114,0 m²
Мансарда 81,9 / 98,9 m²
Холл: 9,4 m²
Ванная комната: 7,4 m²
Спальня: 15,4 m²
Спальня: 14,9 m²
Спальня: 22,6 m²
Ванная комната: 8,4 m²
Гардеробная: 3,8 m²
Терраса: 0,0 m² / 17,0 m²

71. Z364, 164 кв.м - проект дома с мансардой, террасой на первом этаже и гаражом на одну машину.

/ 7
Получить консультацию
Мы вам перезвоним!
Укажите, пожалуйста, номер телефона. Мы перезвоним Вам в ближайшее время!

ПЛОЩАДЬ И ГАБАРИТЫ

площадь дома/общая площадь: 164,4 m²
площадь застройки: 152,7 m²
высота дома: 8,4 m
угол наклона кровли: 40°
площадь кровли: m²

ТЕХНОЛОГИЯ СТРОИТЕЛЬСТВА

тип фундамента: ленточный сборно-монолитный
Кровля: металлочерепица/керамическая черепица
технология: каменный
Тип перекрытия: по деревянным балкам

ОПИСАНИЕ

Z364- проект дома с мансардой, террасой на первом этаже и гаражом на одну машину.

Преимущества проекта Z364:

Наличие трех спален делает дом пригодным для комфортного проживания семьи 2+2. Приватная зона полностью расположена на верхнем этаже. В спальне хозяев предусмотрена индивидуальная ванная комната и отдельный гардероб.
На первом этаже расположены помещения дневной зоны и помещения хозяйственно-бытового назначения.
В доме предусмотрено достаточное количество кладовых, что облегчает хозяйке задачу соблюдения порядка в помещениях.
Интерьер грамотно продуман. Каждый квадрат площади рационально используется, о чем свидетельствует обустроенный под лестничной конструкцией небольшой санузел.
Просторная гостиная совмещена с обеденной зоной. Изюминкой проекта является большой камин в центре гостиной.
Проект Z364 – отличное решение для тех, кто хочет построить для своей семьи комфортабельный функциональный дом с современным оформлением фасадов.

ХАРАКТЕРИСТИКИ

1-ый этаж 95,3 / 95,3 m²
Прихожая: 5,6 m²
Гараж: 26,1 m²
Котельная: 6,9 m²
Сан. узел: 1,7 m²
Гостиная+ столовая: 31,7 m²
Холл: 8,9 m²
Кухня: 11,6 m²
Кладовая: 2,8 m²
2-ой этаж 69,1 / 69,1 m²
Спальня; 10,7 m²
Спальня: 10,3 m²
Спальня: 11,1 m²
Гардеробная: 7,5 m²
Ванная комната: 9,4 m²
Ванная комната: 9,7 m²
Холл: 10,2 m²

72. Z445 D, 155 кв.м - мансардный дом простой формы с современным оригинальным экстерьером.

/ 8
Получить консультацию
Мы вам перезвоним!
Укажите, пожалуйста, номер телефона. Мы перезвоним Вам в ближайшее время!

ПЛОЩАДЬ И ГАБАРИТЫ

площадь дома/общая площадь: 155,5 / 179,8 m²
площадь застройки: 192,1 m²
строительный объем: 930 m³
высота дома: 8,15 m
угол наклона кровли: 35°
площадь кровли: 190,7 m²

ТЕХНОЛОГИЯ СТРОИТЕЛЬСТВА

тип фундамента: ленточный сборно-монолитный
Кровля: металлочерепица/керамическая черепица
технология: каменный
Тип перекрытия: по деревянным балкам

ОПИСАНИЕ

Z445D представляет собой мансардный дом простой формы с современным оригинальным экстерьером.

Преимущества проекта Z445D:
Интересная внутренняя планировка удобна для проживания 3-4 человек.
Проектом предусмотрена терраса и навес для двух автомобилей.
Наличие второго света и больших площадей остекления обеспечивают прекрасное освещение внутреннего пространства.
Интерьер грамотно и удобно разделен на зоны. На первом этаже запроектированы технические помещения, ванная комната, дневная зона и просторная кладовая.
Приватная зона полностью разместилась на мансардном этаже. Здесь 3 спальни и общий санузел. В главной спальне имеется отдельная ванная комната.
В прихожей предусмотрено много места для хранения обуви и одежды.
Проект Z445D пригоден для реализации на узком участке и гармонично вливается как городской, так и загородный пейзаж.

ХАРАКТЕРИСТИКИ

1-ый этаж 76,7 / 101,1 m²
Прихожая: 7,1 m²
Котельная: 6,2 m²
Ванная комната: 6,3 m²
Кладовая: 3,8 m²
Холл: 8,6 m²
Кухня: 10,9 m²
Гостиная+ столовая: 33,8 m²
Терраса: 0,0 m² / 24,4 m²
2-ой этаж 78,8 / 78,8 m²
Кладовая: 4,4 m²
Спальня: 13,0 m²
Спальня: 12,5 m²
Спальня: 15,1 m²
Ванная комната: 4,0 m²
Гардеробная: 2,7 m²
Ванная комната: 13,0 m²
Данные проекты взяты с сайта z500proekty.ru, они используется только для ознакомления.

Контакты

Мы находимся в г. Новосибирске, ул. Мичурина 20
офис 213

График работы:
Пн-Пт с 9:00 до 18:00
Сб: 10:00 до 18:00

тел.: +7 (800) 101 20 04, +7 (913) 771 24 98
e-mail: 7712498stroy@mail.ru 
НАШИ КОНТАКТЫ
Внимание! Данный сайт носит информационный характер и ни при каких условиях не является публичной офертой, которая определяется положениями Статьи 437. Гражданского кодекса РФ. Для получения подробной информации остоимости указанных услуг, пожалуйста, обращайтесь к нашим менеджерам.
Данный сайт был разработан сотрудниками компании «Unicode-Profi»
Сейчас работаем
Не работаем
Обратный звонок
Мы вам перезвоним!
Укажите, пожалуйста, номер телефона. Мы перезвоним Вам в ближайшее время!